櫻ビル 2F 51.32坪

この区画の募集は終了しました
物件概要
所在地
東京都 港区虎ノ門2-5-5
最寄り駅
東京メトロ銀座線「虎ノ門」駅 徒歩3分
東京メトロ日比谷線「虎ノ門ヒルズ」駅 徒歩3分
東京メトロ丸ノ内線「国会議事堂前」駅 徒歩13分
東京メトロ千代田線「国会議事堂前」駅 徒歩13分
駅をもっと見る
竣工
1973年
耐震
耐震補強済
EV
2基
基準階面積
66.02坪
賃貸条件
階数
2F
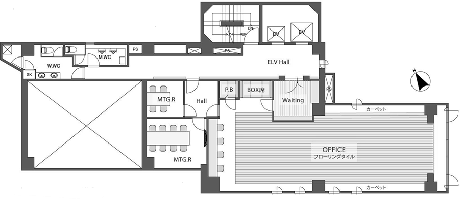
面積
51.32坪 (169.65㎡)
賃料(⽉額/坪単価)
1,103,380円 (21,500円) ※税別
共益費(⽉額/坪単価)
179,620円 (3,500円) ※税別
敷金
お問合せください
更新料
1ヶ月
償却費
入居日
即日
設備
空調
個別
床仕上げ
OAフロア
トイレ
室外男女別
天井高
-
櫻ビル その他募集中の区画
一括選択
選択クリア
階数 面積 賃料+共益費(税別) 敷金 入居日 図面 詳細 問合せ 気になる
3F 51.74坪 21,000円/坪
1,086,540円/月
お問合せください 即日 図面 詳細を見る メールアイコン 問合せ 気になるアイコン
チェックした区画を一括で 気になるアイコン 気になる メールアイコン 問合せ
フリーワード検索