エリアから
検索
路線・駅から
検索
フリーワード
検索
お問い合わせ
相談窓口
問合せ/資料請求
無料
0120-350-323
平日9:00~18:00
検索履歴
Myリスト
気になる
を集めて
Myリストを作りましょう!
エリアから検索
路線・駅から検索
検索履歴
Myリスト
お問い合わせ相談窓口
TEL
無料電話相談( 0120-350-323)
HOME
東京都
櫻ビル
櫻ビル
物件概要
所在地
東京都 港区虎ノ門2-5-5
最寄り駅
東京メトロ 「虎ノ門ヒルズ」駅 徒歩3分
日比谷線 / 銀座線
規模
地上10階 地下1階
竣工
1973年
耐震
耐震補強済
EV
2基
基準階面積
66.02坪
櫻ビル 募集中の区画
一括選択
選択クリア
階数
面積
賃料+共益費(税別)
敷金
入居日
図面
詳細
問合せ
気になる
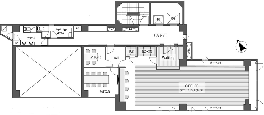
3F
51.74坪
21,000円/坪
1,086,540円/月
お問合せください
即日
詳細を見る
問合せ
チェックした区画を一括で
気になる
問合せ
他のビルの
募集中の区画を見つける
エリアで探す
路線・駅で探す
ビル名で探す
TOPへ
フリーワード検索
閉じる