エリアから
検索
路線・駅から
検索
フリーワード
検索
オフィス移転の
プロに相談
問合せ/資料請求
無料
0120-350-323
平日9:00~18:00
検索履歴
Myリスト
気になる
を集めて
Myリストを作りましょう!
エリアから検索
路線・駅から検索
検索履歴
Myリスト
お問い合わせ相談窓口
TEL
無料電話相談( 0120-350-323)
HOME
エリアから検索する
中央区の検索結果
中央区の検索結果
現在の検索条件
エリア
中央区
検索条件を変更
検索条件の変更
選択クリア
坪数
坪 ~
坪
同ビル内で指定した坪数以外の募集区画もあれば表⽰する
ビル内に指定された面積以外の空室があれば一緒に表示される機能です。不要であればチェックボックスを外してください。
絞り込み条件の変更
築年数
こだわらない
竣工前
築1年以内
築5年以内
築10年以内
築20年以内
築30年以内
耐震
こだわらない
新耐震同等以上
制震・免震
※新耐震同等以上は「制震・免震」「耐震補強済、耐震診断済」などの物件も含んでおります。
入居可能日
こだわらない
今すぐ入居可
空調
こだわらない
個別
セントラル
セントラル・個別併用
床仕上げ
こだわらない
OAフロア
(未施工含む)
タイルカーペット(OAフロア非対応)
Pタイル
フローリング
長尺シート
スケルトン
トイレ
こだわらない
男女別(全て)
男女別(室外)
男女別(室内)
男女共用(全て)
男女共用(室外)
男女共用(室内)
無し
選択中の条件で
該当件数
451
棟
この条件で検索する
エリアの変更
閉じる
東京都
神奈川県
千葉県
全件解除
>
千代田区
(420棟)
神田駅西口・小川町・御茶ノ水
(98棟)
神田駅東口・岩本町
(56棟)
秋葉原・末広町
(31棟)
水道橋・神保町・飯田橋
(89棟)
九段・市ヶ谷・麴町
(120棟)
霞ヶ関・内幸町
(6棟)
大手町・丸の内・有楽町
(20棟)
>
中央区
(451棟)
三越前・新日本橋
(27棟)
日本橋・京橋・八重洲
(49棟)
銀座
(90棟)
築地・新富町
(57棟)
茅場町・八丁堀・新川
(100棟)
人形町・小伝馬町・水天宮前
(72棟)
東日本橋・馬喰町・浜町
(39棟)
晴海・勝どき・月島
(17棟)
>
港区
(501棟)
新橋・虎ノ門・神谷町
(141棟)
浜松町・芝公園・田町・高輪
(149棟)
赤坂・青山・表参道
(108棟)
六本木・麻布
(64棟)
芝浦・港南
(36棟)
台場
(3棟)
>
新宿区
(238棟)
新宿駅東口・新宿御苑
(45棟)
西新宿
(60棟)
四ツ谷駅西口・四谷三丁目
(44棟)
高田馬場・大久保
(32棟)
神楽坂・早稲田
(57棟)
>
渋谷区
(259棟)
道玄坂・神南・神泉
(26棟)
渋谷駅東口・原宿
(113棟)
桜丘・代官山
(10棟)
恵比寿・広尾
(54棟)
千駄ヶ谷・代々木
(38棟)
初台・笹塚
(18棟)
>
品川区
(117棟)
五反田・大崎
(67棟)
北品川・天王洲・品川シーサイド
(44棟)
戸越・西大井
(6棟)
>
豊島区
(64棟)
池袋西口・目白
(20棟)
池袋東口・東池袋
(28棟)
要町・千川
(2棟)
大塚・巣鴨
(14棟)
>
文京区
(72棟)
湯島・本郷・護国寺
(65棟)
白山・千駄木・本駒込
(7棟)
>
台東区
(71棟)
上野・御徒町・上野広小路
(41棟)
浅草・蔵前・浅草橋
(27棟)
入谷・三ノ輪
(3棟)
>
目黒区
(36棟)
目黒・中目黒・祐天寺
(18棟)
池尻大橋・駒場東大前
(9棟)
学芸大学・都立大学・自由が丘
(9棟)
>
中野区
(14棟)
中野・東中野
(2棟)
中野坂上・中野新橋
(5棟)
新井薬師前・野方
(7棟)
>
杉並区
(10棟)
高円寺・阿佐ヶ谷・永福町
(7棟)
荻窪・西荻窪・高井戸
(3棟)
>
世田谷区
(27棟)
三軒茶屋・用賀・二子玉川・等々力
(16棟)
下北沢・経堂・成城学園前
(8棟)
明大前・千歳烏山
(3棟)
>
大田区
(42棟)
大森・馬込・平和島
(17棟)
蒲田・羽田・六郷土手
(21棟)
池上・洗足池・田園調布
(4棟)
>
江東区
(71棟)
門前仲町・東陽町・清澄白河
(37棟)
亀戸・西大島・大島
(11棟)
豊洲・有明・新木場
(23棟)
>
墨田区
(32棟)
両国・錦糸町・菊川
(23棟)
とうきょうスカイツリー・本所吾妻橋・東向島
(9棟)
>
足立区
(20棟)
北千住・千住大橋・堀切
(2棟)
綾瀬・西新井・舎人
(18棟)
>
荒川区
(10棟)
日暮里・西日暮里
(7棟)
南千住・町屋
(3棟)
>
北区
(5棟)
田端・王子
(3棟)
赤羽・東十条
(2棟)
>
板橋区
(15棟)
板橋・本蓮沼・ときわ台
(8棟)
高島平・志村坂上
(7棟)
>
練馬区
(7棟)
練馬・光が丘
(6棟)
大泉学園・上石神井
(1棟)
>
江戸川区
(10棟)
小岩・一之江
(4棟)
葛西・葛西臨海公園
(6棟)
>
葛飾区
(6棟)
青砥・新小岩・亀有
(5棟)
金町・高砂・柴又
(1棟)
全件解除
全件解除
横浜市
(13棟)
川崎市
(16棟)
全件解除
千葉市
(43棟)
変更する
路線・駅の変更
閉じる
関東
北海道
東北
中部
近畿
中国
四国
九州・沖縄
東京都
神奈川県
千葉県
埼玉県
茨城県
栃木県
群馬県
JR
山手線
京浜東北線
中央線
東海道本線
総武線
総武線快速
埼京線
上野東京ライン
湘南新宿ライン
横須賀線
相鉄・JR直通線
京葉線
南武線
高崎線
宇都宮線
常磐線快速
常磐線各駅停車
横浜線
武蔵野線
青梅線
中央本線
五日市線
八高線
東海道新幹線
東北新幹線
上越新幹線
北陸新幹線
東京メトロ
丸ノ内線
有楽町線
日比谷線
千代田線
半蔵門線
東西線
銀座線
南北線
副都心線
丸ノ内分岐線
東京都交通局
私鉄
東急東横線
東急田園都市線
東急池上線
東急世田谷線
東急大井町線
東急目黒線
東急多摩川線
京王線
京王井の頭線
京王相模原線
京王新線
京王高尾線
京王動物園線
京王競馬場線
東武東上本線
東武伊勢崎線
東武大師線
東武亀戸線
小田急小田原線
小田急多摩線
西武池袋線
西武新宿線
西武有楽町線
西武多摩川線
西武国分寺線
西武多摩湖線
西武山口線
西武拝島線
西武西武園線
西武豊島線
京成本線
京成押上線
京成金町線
京成成田空港線
京急本線
京急空港線
つくばエクスプレス線
新交通ゆりかもめ
東京りんかい線
東京モノレール羽田線
多摩モノレール
高尾登山電鉄線
北総鉄道
埼玉高速鉄道
御岳登山鉄道
JR
東海道本線
上野東京ライン
湘南新宿ライン
横須賀線
京浜東北線
横浜線
根岸線
鶴見線
相鉄・JR直通線
南武線
南武支線
中央本線
御殿場線
相模線
東海道新幹線
東急電鉄
東急東横線
東急田園都市線
東急目黒線
東急こどもの国線
京浜急行鉄道
本線
久里浜線
大師線
逗子線
小田急電鉄
小田原線
江ノ島線
多摩線
相模鉄道
本線
いずみ野線
横浜高速鉄道
横浜みなとみらい線
京王電鉄
京王相模原線
横浜市営地下鉄ブルーライン
横浜市ブルーライン
横浜市営地下鉄グリーンライン
グリーンライン
シーサイドライン
金沢シーサイドライン
湘南モノレール
湘南モノレール
江ノ島電鉄
江ノ島電鉄線
箱根登山鉄道
箱根登山鉄道線
箱根登山鉄道鋼索線
伊豆箱根鉄道
大雄山線
大山ケーブルカー
大山鋼索線
JR
総武本線
総武線
総武線快速
常磐線各駅停車
常磐線快速
武蔵野線
京葉線
成田線
成田線我孫子支線
外房線
内房線
東金線
鹿島線
久留里線
東京メトロ
東西線
京成電鉄
本線
千葉線
千原線
成田空港線
新京成電鉄
新京成電鉄線
東武鉄道
野田線
東葉高速鉄道
東葉高速鉄道
首都圏新都市鉄道
つくばエクスプレス線
千葉都市モノレール
1号線
2号線
東京都交通局
都営新宿線
北総鉄道
北総鉄道
いすみ鉄道
いすみ鉄道
小湊鉄道
小湊鉄道
山万
ユーカリが丘線
流鉄
流山線
芝山鉄道
芝山鉄道線
銚子電気鉄道
銚子電鉄線
舞浜リゾートライン
ディズニーリゾートライン
JR
京浜東北線
埼京線
高崎線
武蔵野線
宇都宮線
川越線
八高線
上野東京ライン
湘南新宿ライン
東北新幹線
上越新幹線
北陸新幹線
西武鉄道
新宿線
池袋線
狭山線
山口線
秩父線
東武鉄道
東上本線
伊勢崎線
野田線
日光線
越生線
東京メトロ
有楽町線
副都心線
埼玉高速鉄道
埼玉高速鉄道
埼玉新都市交通
伊奈線
首都圏新都市鉄道
つくばエクスプレス線
秩父鉄道
秩父本線
JR
宇都宮線
常磐線
常磐線各駅停車
常磐線快速
水戸線
水郡線
鹿島線
首都圏新都市鉄道
つくばエクスプレス線
関東鉄道
常総線
竜ヶ崎線
ひたちなか海浜鉄道
湊線
鹿島臨海鉄道線
鹿島臨海鉄道線
真岡鐵道
真岡鐵道
筑波山鋼索鉄道
筑波山鋼索鉄道線
JR
宇都宮線
日光線
烏山線
水戸線
東北本線
両毛線
東北新幹線
東武鉄道
東武宇都宮線
東武伊勢崎線
東武日光線
東武佐野線
東武鬼怒川線
真岡鐵道
真岡鐵道
野岩鉄道
会津鬼怒川線
わたらせ渓谷鐵道
わたらせ渓谷鐵道線
JR
高崎線
上越線
両毛線
信越本線
八高線
吾妻線
上越新幹線
北陸新幹線
東武鉄道
伊勢崎線
小泉線
桐生線
日光線
佐野線
上毛電気鉄道
上毛電鉄上毛線
上信電鉄
上信電鉄上信線
わたらせ渓谷鐵道
わたらせ渓谷鐵道線
北海道
JR
函館本線
函館支線
千歳線
室蘭本線
室蘭支線
根室本線
石北本線
宗谷本線
富良野線
日高本線
札沼線
海峡線
留萌本線
石勝線
釧網本線
北海道新幹線
札幌市営地下鉄
札幌市東西線
札幌市南北線
札幌市東豊線
札幌市電
札幌市電
函館市電
函館市電本線
函館市電湯の川線
函館市電宝来・谷地頭線
道南いさりび鉄道
道南いさりび鉄道線
青森県
岩手県
宮城県
秋田県
山形県
福島県
JR
JR奥羽本線
JR八戸線
JR五能線
JR津軽線
JR海峡線
JR大湊線
JR東北本線
北海道新幹線
東北新幹線
弘南鉄道
弘南線
大鰐線
津軽鉄道
津軽鉄道線
青い森鉄道
青い森鉄道線
青函トンネル竜飛斜坑線
青函トンネル竜飛斜坑線
JR
東北本線
八戸線
田沢湖線
釜石線
山田線
北上線
大船渡線
花輪線
大船渡BRT線
秋田新幹線
東北新幹線
三陸鉄道
リアス線
JR
常磐線
東北本線
仙石線
仙山線
陸羽東線
利府線
大船渡線
気仙沼線
石巻線
大船渡BRT線
気仙沼BRT線
東北新幹線
仙台市交通局
南北線
東西線
阿武隈急行
阿武隈急行
仙台空港アクセス鉄道
仙台空港鉄道
JR
奥羽本線
羽越本線
田沢湖線
五能線
北上線
男鹿線
花輪線
秋田新幹線
秋田内陸縦貫鉄道
秋田内陸縦貫鉄道
由利高原鉄道
由利高原鉄道鳥海山ろく線
JR
奥羽本線
仙山線
左沢線
米坂線
羽越本線
陸羽東線
陸羽西線
山形新幹線
山形鉄道
フラワー長井線
JR
常磐線
東北本線
水郡線
磐越東線
磐越西線
只見線
奥羽本線
山形新幹線
東北新幹線
福島交通
飯坂線
会津鉄道
会津線
阿武隈急行
阿武隈急行
野岩鉄道
会津鬼怒川線
新潟県
富山県
石川県
福井県
山梨県
長野県
岐阜県
静岡県
愛知県
JR
信越本線
上越線
越後線
白新線
羽越本線
弥彦線
磐越西線
米坂線
飯山線
大糸線
只見線
上越新幹線
北陸新幹線
北越急行
ほくほく線
えちごトキめき鉄道
妙高はねうまライン
日本海ひすいライン
しなの鉄道
北しなの線
あいの風とやま鉄道
あいの風とやま鉄道線
JR
高山本線
城端線
氷見線
北陸新幹線
富山地方鉄道
北陸鉄道石川線
北陸鉄道浅野川線
万葉線
高岡軌道線
新湊港線
立山黒部貫光立山ケーブルカー
立山ケーブルカー
立山トンネルトロリーバス
黒部ケーブルカー
黒部峡谷鉄道
黒部峡谷鉄道
あいの風とやま鉄道
あいの風とやま鉄道線
JR
JR七尾線
JR北陸本線
北陸新幹線
北陸鉄道
北陸鉄道石川線
北陸鉄道浅野川線
のと鉄道
七尾線
IRいしかわ鉄道
IRいしかわ鉄道線
あいの風とやま鉄道
あいの風とやま鉄道線
JR
北陸本線
小浜線
越美北線
福井鉄道
福武線
えちぜん鉄道
三国芦原線
勝山永平寺線
JR
中央本線
身延線
小海線
富士山麓電気鉄道
富士急行線
JR
JR中央本線
JR中央本線支線
JR信越本線
JR大糸線
JR小海線
JR篠ノ井線
JR飯山線
JR飯田線
北陸新幹線
長野電鉄
長野線
しなの鉄道
しなの鉄道線
北しなの線
上田電鉄
別所線
松本電鉄
上高地線
JR
東海道本線
高山本線
中央本線
太多線
東海道新幹線
名古屋鉄道
名古屋本線
各務原線
広見線
犬山線
竹鼻線
羽島線
樽見鉄道
樽見線
明知鉄道
明知鉄道線
養老鉄道
養老線
長良川鉄道
越美南線
JR
東海道本線
御殿場線
伊東線
飯田線
身延線
東海道新幹線
伊豆急行
伊豆急行線
伊豆箱根鉄道
駿豆線
十国鋼索線
静岡鉄道
静岡清水線
大井川鐵道
本線
井川線
天竜浜名湖鉄道
天竜浜名湖線
岳南鉄道
岳南鉄道線
遠州鉄道
遠州鉄道線
JR
東海道本線
中央本線
関西本線
飯田線
武豊線
東海道新幹線
名古屋鉄道
名古屋本線
三河線
犬山線
瀬戸線
小牧線
津島線
尾西線
常滑線
広見線
河和線
西尾線
知多新線
築港線
蒲郡線
豊川線
豊田線
空港線
名古屋市交通局
東山線
名城線
鶴舞線
桜通線
上飯田線
名港線
名古屋臨海高速鉄道
あおなみ線
近畿日本鉄道
名古屋線
豊橋鉄道
東田本線
渥美線
愛知環状鉄道
愛知環状鉄道線
東海交通事業
城北線
愛知高速交通
リニモ
三重県
滋賀県
京都府
大阪府
兵庫県
奈良県
和歌山県
JR
関西本線
紀勢本線
名松線
参宮線
草津線
近畿日本鉄道
名古屋線
大阪線
山田線
志摩線
湯の山線
鈴鹿線
鳥羽線
三岐鉄道
三岐線
北勢線
四日市あすなろう鉄道
内部線
八王子線
伊賀鉄道
伊賀線
養老鉄道
養老線
伊勢鉄道
伊勢線
JR
北陸本線
東海道本線
湖西線
草津線
琵琶湖線
東海道新幹線
近江鉄道
本線
八日市線
多賀線
京阪電気鉄道
京阪石山坂本線
京阪京津線
信楽高原鐵道
信楽線
比叡山鉄道
比叡山鉄道線
JR
京都線
山陰本線
湖西線
奈良線
大和路線
小浜線
片町線
琵琶湖線
福知山線
舞鶴線
関西本線
東海道新幹線
近畿日本鉄道
近鉄京都線
阪急電鉄
京都本線
嵐山線
京阪電気鉄道
本線
宇治線
京津線
鋼索線
京福電気鉄道
嵐山線
北野線
京福電鉄鋼索線
京都市交通局
東西線
烏丸線
叡山電鉄
本線
鞍馬線
京都丹後鉄道
宮舞線
宮豊線
宮福線
天橋立鋼索鉄道
天橋立鋼索線
鞍馬山鋼索鉄道
鞍馬山鋼索鉄道線
嵯峨野観光鉄道
嵯峨野観光線
JR
大阪環状線
おおさか東線
阪和線
福知山線
京都線
大和路線
東西線
片町線
神戸線
桜島線
関西空港線
山陽新幹線
東海道新幹線
近畿日本鉄道
けいはんな線
大阪線
南大阪線
信貴線
奈良線
西信貴ケーブル線
道明寺線
長野線
大阪市高速電気軌道
御堂筋線
谷町線
中央線
千日前線
堺筋線
四つ橋線
長堀鶴見緑地線
今里筋線
南港ポートタウン線
南海電気鉄道
本線
高野線
多奈川線
汐見橋線
空港線
高師浜線
阪急電鉄
京都本線
千里線
宝塚本線
神戸本線
箕面線
阪堺電気軌道
阪堺電軌上町線
阪堺電軌阪堺線
阪神電気鉄道
本線
なんば線
大阪モノレール
大阪モノレール
大阪モノレール彩都線
京阪電気鉄道
交野線
本線
中之島線
北大阪急行
北大阪急行
泉北高速鉄道
泉北高速鉄道
能勢電鉄
妙見線
水間鉄道
水間鉄道
JR
山陽本線
神戸線
福知山線
姫新線
加古川線
和田岬線
山陰本線
播但線
東西線
赤穂線
山陽新幹線
神戸市交通局
西神・山手線
海岸線
神戸電鉄
三田線
有馬線
粟生線
公園都市線
阪急電鉄
阪急神戸本線
阪急宝塚本線
阪急今津線
阪急伊丹線
阪急甲陽線
阪神電気鉄道
阪神本線
阪神武庫川線
阪神なんば線
山陽電気鉄道
本線
網干線
神戸高速
神戸高速神鉄線
神戸高速鉄道東西線
能勢電鉄
能勢電鉄妙見線
能勢電鉄日生線
能勢電鉄妙見ケーブル
智頭急行
智頭線
北条鉄道
北条鉄道
北神急行
北神急行
六甲山観光
六甲ケーブル線
神戸新交通
ポートアイランド線
六甲ライナー
神戸住環境整備公社
摩耶ケーブル線
京都丹後鉄道
宮豊線
JR
奈良線
和歌山線
大和路線
桜井線
近畿日本鉄道
奈良線
橿原線
大阪線
天理線
南大阪線
吉野線
生駒線
けいはんな線
京都線
御所線
生駒ケーブル線
田原本線
JR
和歌山線
紀勢本線
阪和線
南海電気鉄道
本線
高野線
加太線
和歌山港線
鋼索線
わかやま電鉄
貴志川線
紀州鉄道
紀州鉄道
鳥取県
島根県
岡山県
広島県
山口県
JR
山陰本線
境線
伯備線
因美線
智頭急行
智頭線
若桜鉄道
若桜線
JR
山陰本線
木次線
山口線
一畑電気鉄道
北松江線
大社線
JR
山陽本線
宇野線
伯備線
赤穂線
吉備線
因美線
姫新線
本四備讃線
津山線
芸備線
山陽新幹線
岡山電気軌道
東山線
清輝橋線
水島臨海鉄道
水島臨海鉄道
智頭急行
智頭線
井原鉄道
井原鉄道線
JR
山陽本線
可部線
呉線
木次線
福塩線
芸備線
山陽新幹線
広島電鉄
本線
宮島線
宇品線
横川線
江波線
白島線
皆実線
広島高速交通
アストラムライン
井原鉄道
井原鉄道
スカイレールサービス
スカイレールみどり坂線
JR
山陽本線
山陰本線
宇部線
小野田線
山口線
岩徳線
美祢線
山陽新幹線
錦川鉄道
錦川清流線
徳島県
香川県
愛媛県
高知県
JR
徳島線
牟岐線
高徳線
鳴門線
土讃線
阿佐海岸鉄道
阿佐海岸鉄道
JR
高徳線
予讃線
土讃線
本四備讃線
高松琴平電鉄
志度線
長尾線
琴平線
四国ケーブル
四国ケーブル線
JR
予讃線
予讃支線
予土線
内子線
伊予鉄道
横河原線
郡中線
高浜線
城北線
城南線
大手町線
本町線
花園線
JR
土讃線
予土線
土佐電
伊野線
後免線
桟橋線
土佐くろしお鉄道
中村線
宿毛線
阿佐線
阿佐海岸鉄道
阿佐海岸鉄道
福岡県
佐賀県
長崎県
熊本県
大分県
宮崎県
鹿児島県
沖縄県
JR
鹿児島本線
日豊本線
日田彦山線
博多南線
筑豊本線
久大本線
山陽本線
後藤寺線
筑肥東線
篠栗線
香椎線
九州新幹線
山陽新幹線
西日本鉄道
天神大牟田線
太宰府線
貝塚線
甘木線
福岡市交通局
七隈線
空港線
箱崎線
北九州高速鉄道
北九州高速鉄道
平成筑豊鉄道
伊田線
田川線
糸田線
門司港レトロ観光線
甘木鉄道
甘木線
筑豊電気鉄道
筑豊電鉄線
皿倉登山鉄道
帆柱ケーブル線
JR
長崎本線
鹿児島本線
佐世保線
唐津線
筑肥東線
筑肥西線
九州新幹線
松浦鉄道
松浦鉄道
甘木鉄道
甘木線
JR
長崎本線
長崎旧線
佐世保線
大村線
長崎電軌
本線
大浦支線
桜町支線
蛍茶屋支線
赤迫支線
島原鉄道
島原鉄道
松浦鉄道
松浦鉄道
JR
鹿児島本線
豊肥本線
三角線
肥薩線
九州新幹線
熊本市交通局
熊本市電上熊本線
熊本市電健軍線
熊本市電幹線
熊本市電水前寺線
熊本市電田崎線
熊本電気鉄道
熊本電鉄菊池線
熊本電鉄藤崎線
肥薩おれんじ鉄道
肥薩おれんじ鉄道線
くま川鉄道
くま川鉄道線
南阿蘇鉄道
南阿蘇鉄道
JR
日豊本線
豊肥本線
久大本線
日田彦山線
ラクテンチ
別府ラクテンチケーブル線
JR
日南線
日豊本線
吉都線
宮崎空港線
肥薩線
JR
鹿児島本線
指宿枕崎線
日南線
日豊本線
肥薩線
吉都線
九州新幹線
鹿児島市交通局
鹿児島市電唐湊線
鹿児島市電第一期線
鹿児島市電第二期線
鹿児島市電谷山線
肥薩おれんじ鉄道
肥薩おれんじ鉄道線
沖縄都市モノレール
沖縄ゆいレール
変更する
選択中の駅は
0駅
です
選択中の駅を確認
駅の選択
選択済み路線・駅
追加せずに閉じる
候補に追加する
選択済み路線・駅
追加せずに閉じる
選択中の路線・駅
路線・駅の変更に戻る
ビル名から検索する
閉じる
ご希望のビル名をご記入ください
必須
検索結果
検索結果
451
棟
(1~30件表示)
新着順
賃料が安い順
賃料が高い順
面積が小さい順
面積が広い順
築年数が古い順
築年数が新しい順
20〜30坪
30〜40坪
40〜50坪
50〜80坪
80〜100坪
100〜200坪
200坪以上
サンホリベビル
ビル詳細を見る
所在地
東京都 中央区日本橋蛎殻町2-5-3
最寄り駅
東京メトロ
「水天宮前」
駅
徒歩2分
半蔵門線
東京メトロ
「人形町」
駅
徒歩5分
日比谷線
都営地下鉄
「人形町」
駅
徒歩5分
都営浅草線
都営地下鉄
「浜町」
駅
徒歩8分
都営新宿線
規模
地上9階 地下1階
竣工
1989年10月
耐震
新耐震
気になる
全フロア
階数
面積
賃料+共益費(税別)
敷金
入居日
図面
詳細
問合せ
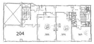
全フロア
5F
20.00坪
16,000円/坪
320,000円/月
6ヶ月
即日
詳細を見る
問合せ
須磨マンション
ビル詳細を見る
所在地
東京都中央区日本橋蛎殻町2-15-9
最寄り駅
東京メトロ
「水天宮前」
駅
徒歩4分
半蔵門線
東京メトロ
「人形町」
駅
徒歩8分
日比谷線
都営地下鉄
「人形町」
駅
徒歩8分
都営浅草線
都営地下鉄
「浜町」
駅
徒歩9分
都営新宿線
規模
地上9階
竣工
1970年01月
耐震
旧耐震
気になる
全フロア
階数
面積
賃料+共益費(税別)
敷金
入居日
図面
詳細
問合せ
全フロア
5F
20.05坪
11,970円/坪
240,000円/月
3ヶ月
2026/1中旬
詳細を見る
問合せ
浜町アクセスⅡビル
ビル詳細を見る
所在地
東京都 中央区日本橋人形町2-33-6
最寄り駅
東京メトロ
「人形町」
駅
徒歩4分
日比谷線
都営地下鉄
「浜町」
駅
徒歩4分
都営新宿線 / 都営浅草線
東京メトロ
「水天宮前」
駅
徒歩5分
半蔵門線
規模
地上7階
竣工
1988年02月
耐震
新耐震
気になる
全フロア
階数
面積
賃料+共益費(税別)
敷金
入居日
図面
詳細
問合せ
全フロア
4F
20.15坪
17,000円/坪
342,550円/月
8ヶ月
即日
詳細を見る
問合せ
井門八重洲ビル
ビル詳細を見る
所在地
東京都 中央区八重洲1-5-10
最寄り駅
東京メトロ
「日本橋」
駅
徒歩2分
東西線 / 銀座線
都営地下鉄
「日本橋」
駅
徒歩2分
都営浅草線
JR
「東京」
駅
徒歩5分
中央線 / 京浜東北線 / 京葉線 / 山手線 / 東海道本線 / 横須賀線 / 総武線快速 / 上越新幹線 / 東北新幹線 / 東海道新幹線 / 北陸新幹線 / 上野東京ライン
東京メトロ
「三越前」
駅
徒歩8分
半蔵門線
規模
地上7階 地下1階
竣工
1966年
耐震
旧耐震
気になる
全フロア
階数
面積
賃料+共益費(税別)
敷金
入居日
図面
詳細
問合せ
全フロア
B1F
20.50坪
30,000円/坪
615,000円/月
12ヶ月
即日
詳細を見る
問合せ
松永新富ビル
ビル詳細を見る
所在地
東京都 中央区新富1-14-8
最寄り駅
JR
「八丁堀」
駅
徒歩4分
京葉線
東京メトロ
「八丁堀」
駅
徒歩4分
日比谷線
東京メトロ
「新富町」
駅
徒歩5分
有楽町線
都営地下鉄
「宝町」
駅
徒歩8分
都営浅草線
規模
地上5階
竣工
1990年11月
耐震
新耐震
気になる
全フロア
階数
面積
賃料+共益費(税別)
敷金
入居日
図面
詳細
問合せ
全フロア
5F
20.55坪
13,500円/坪
277,425円/月
8ヶ月
2026/5
詳細を見る
問合せ
GMビル
ビル詳細を見る
所在地
東京都 中央区銀座4-10-10
最寄り駅
東京メトロ
「東銀座」
駅
徒歩1分
日比谷線
都営地下鉄
「東銀座」
駅
徒歩1分
都営浅草線
東京メトロ
「銀座」
駅
徒歩4分
丸ノ内線 / 日比谷線 / 銀座線
東京メトロ
「銀座一丁目」
駅
徒歩6分
有楽町線
規模
地上11階 地下2階
竣工
1974年01月 リニューアル有
耐震
旧耐震
気になる
全フロア
階数
面積
賃料+共益費(税別)
敷金
入居日
図面
詳細
問合せ
全フロア
8F
20.58坪
お問合せください
12ヶ月
即日
詳細を見る
問合せ
浜町野島ビル
ビル詳細を見る
所在地
東京都 中央区日本橋浜町3-45-3
最寄り駅
都営地下鉄
「浜町」
駅
徒歩7分
都営新宿線
東京メトロ
「水天宮前」
駅
徒歩8分
半蔵門線
都営地下鉄
「森下」
駅
徒歩11分
都営大江戸線 / 都営新宿線
規模
地上7階
竣工
1990年10月
耐震
新耐震
気になる
全フロア
階数
面積
賃料+共益費(税別)
敷金
入居日
図面
詳細
問合せ
全フロア
4F
20.62坪
8,377円/坪
172,728円/月
6ヶ月
即日
詳細を見る
問合せ
KEC銀座ビル
ビル詳細を見る
所在地
東京都 中央区銀座3-10-9
最寄り駅
東京メトロ
「東銀座」
駅
徒歩1分
日比谷線
都営地下鉄
「東銀座」
駅
徒歩1分
都営浅草線
東京メトロ
「銀座一丁目」
駅
徒歩5分
有楽町線
東京メトロ
「銀座」
駅
徒歩6分
丸ノ内線 / 日比谷線 / 銀座線
規模
地上10階 地下1階
竣工
1982年12月
耐震
新耐震
気になる
全フロア
階数
面積
賃料+共益費(税別)
敷金
入居日
図面
詳細
問合せ
全フロア
5F
20.68坪
24,178円/坪
500,000円/月
12ヶ月
2026/3
詳細を見る
問合せ
第1井上ビル
ビル詳細を見る
所在地
東京都 中央区日本橋茅場町2-14-1
最寄り駅
東京メトロ
「茅場町」
駅
徒歩1分
日比谷線 / 東西線
JR
「八丁堀」
駅
徒歩7分
京葉線
東京メトロ
「八丁堀」
駅
徒歩7分
日比谷線
都営地下鉄
「日本橋」
駅
徒歩9分
都営浅草線
規模
地上7階 地下1階
竣工
1972年08月 リニューアル有
耐震
旧耐震
気になる
全フロア
階数
面積
賃料+共益費(税別)
敷金
入居日
図面
詳細
問合せ
全フロア
1F
20.81坪
33,015円/坪
687,060円/月
8ヶ月
相談
詳細を見る
問合せ
3F
20.34坪
16,000円/坪
325,440円/月
8ヶ月
相談
詳細を見る
問合せ
AUBE新川ビル
ビル詳細を見る
所在地
東京都 中央区新川2-18-10
最寄り駅
JR
「八丁堀」
駅
徒歩3分
京葉線
東京メトロ
「八丁堀」
駅
徒歩3分
日比谷線
東京メトロ
「茅場町」
駅
徒歩9分
日比谷線 / 東西線
規模
地上10階
竣工
1974年09月 リニューアル有
耐震
旧耐震
気になる
全フロア
階数
面積
賃料+共益費(税別)
敷金
入居日
図面
詳細
問合せ
全フロア
3F
20.82坪
17,000円/坪
353,940円/月
6ヶ月
相談
詳細を見る
問合せ
日東本石町ビル
ビル詳細を見る
所在地
東京都 中央区日本橋本石町4-5-1
最寄り駅
JR
「神田」
駅
徒歩4分
中央線 / 京浜東北線 / 山手線 / 総武線快速
東京メトロ
「三越前」
駅
徒歩5分
銀座線
規模
地上9階
竣工
1991年10月
耐震
新耐震
気になる
全フロア
階数
面積
賃料+共益費(税別)
敷金
入居日
図面
詳細
問合せ
全フロア
4F
20.86坪
15,000円/坪
312,900円/月
5ヶ月
2026/6
詳細を見る
問合せ
井門茅場町ビル
ビル詳細を見る
所在地
東京都 中央区日本橋茅場町2-4-8
最寄り駅
東京メトロ
「茅場町」
駅
徒歩2分
日比谷線 / 東西線
JR
「八丁堀」
駅
徒歩5分
京葉線
東京メトロ
「八丁堀」
駅
徒歩5分
日比谷線
東京メトロ
「日本橋」
駅
徒歩7分
東西線 / 銀座線
都営地下鉄
「日本橋」
駅
徒歩7分
都営浅草線
規模
地上8階
竣工
1969年02月 リニューアル有
耐震
耐震補強済
気になる
全フロア
階数
面積
賃料+共益費(税別)
敷金
入居日
図面
詳細
問合せ
全フロア
3F
20.90坪
15,000円/坪
313,500円/月
10ヶ月
相談
詳細を見る
問合せ
ワイ・エヌ銀座ビル
ビル詳細を見る
所在地
東京都 中央区銀座8-14-11
最寄り駅
都営地下鉄
「築地市場」
駅
徒歩5分
都営大江戸線
新交通ゆりかもめ
「新橋」
駅
徒歩8分
都営地下鉄
「新橋」
駅
徒歩8分
都営浅草線
規模
地上10階
竣工
1989年03月
耐震
新耐震
気になる
全フロア
階数
面積
賃料+共益費(税別)
敷金
入居日
図面
詳細
問合せ
全フロア
10F
20.96坪
お問合せください
10ヶ月
即日
詳細を見る
問合せ
ツカコシビル
ビル詳細を見る
所在地
東京都 中央区日本橋人形町1-7-10
最寄り駅
東京メトロ
「人形町」
駅
徒歩2分
日比谷線
都営地下鉄
「人形町」
駅
徒歩2分
都営浅草線
東京メトロ
「水天宮前」
駅
徒歩5分
半蔵門線
東京メトロ
「茅場町」
駅
徒歩8分
日比谷線 / 東西線
規模
地上9階 地下1階
竣工
1975年07月
耐震
旧耐震
気になる
全フロア
階数
面積
賃料+共益費(税別)
敷金
入居日
図面
詳細
問合せ
全フロア
2F
21.00坪
12,900円/坪
270,900円/月
5ヶ月
即日
詳細を見る
問合せ
山一大野ビル
ビル詳細を見る
所在地
東京都 中央区日本橋本町3-2-14
最寄り駅
JR
「新日本橋」
駅
徒歩1分
総武線快速
東京メトロ
「三越前」
駅
徒歩2分
銀座線
東京メトロ
「三越前」
駅
徒歩5分
半蔵門線
JR
「神田」
駅
徒歩6分
中央線 / 京浜東北線 / 山手線
規模
地上6階
竣工
2007年08月
耐震
新耐震
気になる
全フロア
階数
面積
賃料+共益費(税別)
敷金
入居日
図面
詳細
問合せ
全フロア
4F
21.10坪
23,000円/坪
485,300円/月
12ヶ月
2026/4
詳細を見る
問合せ
日本橋本町東石ビル
ビル詳細を見る
所在地
東京都中央区日本橋本町4-9-3
最寄り駅
JR
「新日本橋」
駅
徒歩2分
総武線快速
東京メトロ
「小伝馬町」
駅
徒歩3分
日比谷線
東京メトロ
「三越前」
駅
徒歩7分
銀座線
規模
地上14階
竣工
2023年01月
耐震
新耐震
気になる
全フロア
階数
面積
賃料+共益費(税別)
敷金
入居日
図面
詳細
問合せ
全フロア
9F
21.13坪
20,000円/坪
422,600円/月
10ヶ月
即日
詳細を見る
問合せ
Eビル
ビル詳細を見る
所在地
東京都 中央区新川2-17-12
最寄り駅
JR
「八丁堀」
駅
徒歩5分
京葉線
東京メトロ
「八丁堀」
駅
徒歩6分
日比谷線
東京メトロ
「茅場町」
駅
徒歩8分
日比谷線 / 東西線
東京メトロ
「新富町」
駅
徒歩12分
有楽町線
規模
地上10階
竣工
1993年11月
気になる
全フロア
階数
面積
賃料+共益費(税別)
敷金
入居日
図面
詳細
問合せ
全フロア
3F
21.20坪
16,000円/坪
339,200円/月
10ヶ月
2026/9
詳細を見る
問合せ
日東ビル
ビル詳細を見る
所在地
東京都 中央区日本橋本石町4-2-3
最寄り駅
JR
「神田」
駅
徒歩4分
中央線 / 京浜東北線 / 山手線
JR
「新日本橋」
駅
徒歩6分
総武線快速
東京メトロ
「大手町」
駅
徒歩7分
丸ノ内線
規模
地上7階
竣工
1973年
耐震
旧耐震
気になる
全フロア
階数
面積
賃料+共益費(税別)
敷金
入居日
図面
詳細
問合せ
全フロア
7F
21.27坪
お問合せください
6ヶ月
即日
詳細を見る
問合せ
宝国ビル
ビル詳細を見る
所在地
東京都 中央区京橋3-9-2
最寄り駅
都営地下鉄
「宝町」
駅
徒歩1分
都営浅草線
東京メトロ
「京橋」
駅
徒歩2分
銀座線
東京メトロ
「銀座一丁目」
駅
徒歩5分
有楽町線
規模
地上10階
竣工
1971年01月
耐震
旧耐震
気になる
全フロア
階数
面積
賃料+共益費(税別)
敷金
入居日
図面
詳細
問合せ
全フロア
7F
21.50坪
17,000円/坪
365,500円/月
6ヶ月
相談
詳細を見る
問合せ
ビュレックス京橋ビル
ビル詳細を見る
所在地
東京都 中央区京橋2-7-14
最寄り駅
東京メトロ
「京橋」
駅
徒歩1分
銀座線
都営地下鉄
「宝町」
駅
徒歩2分
都営浅草線
東京メトロ
「銀座一丁目」
駅
徒歩7分
有楽町線
規模
地上8階 地下1階
竣工
2002年02月
耐震
新耐震
気になる
全フロア
階数
面積
賃料+共益費(税別)
敷金
入居日
図面
詳細
問合せ
全フロア
2F
21.52坪
42,000円/坪
903,840円/月
6ヶ月
2026/5/6
詳細を見る
問合せ
ハイパーク日本橋ビル
ビル詳細を見る
所在地
東京都 中央区日本橋浜町2-45-4
最寄り駅
都営地下鉄
「浜町」
駅
徒歩2分
都営新宿線
東京メトロ
「水天宮前」
駅
徒歩8分
半蔵門線 / 日比谷線
都営地下鉄
「人形町」
駅
徒歩8分
都営浅草線
規模
地上7階
竣工
1990年11月
耐震
新耐震
気になる
全フロア
階数
面積
賃料+共益費(税別)
敷金
入居日
図面
詳細
問合せ
全フロア
4F
21.53坪
14,000円/坪
301,420円/月
10ヶ月
2026/7月下旬
詳細を見る
問合せ
5F
21.53坪
お問合せください
10ヶ月
即日
詳細を見る
問合せ
八重洲長岡ビル
ビル詳細を見る
所在地
東京都 中央区新川2-8-4
最寄り駅
JR
「八丁堀」
駅
徒歩4分
京葉線
東京メトロ
「八丁堀」
駅
徒歩4分
日比谷線
東京メトロ
「茅場町」
駅
徒歩6分
日比谷線 / 東西線
規模
地上8階
竣工
1979年05月
耐震
旧耐震
気になる
全フロア
階数
面積
賃料+共益費(税別)
敷金
入居日
図面
詳細
問合せ
全フロア
2F
21.84坪
16,000円/坪
349,440円/月
10ヶ月
2026/6
詳細を見る
問合せ
6F
21.84坪
15,000円/坪
327,600円/月
10ヶ月
2026/5
詳細を見る
問合せ
Ikigai Bashiビル
ビル詳細を見る
所在地
東京都 中央区日本橋大伝馬町1-7
最寄り駅
東京メトロ
「小伝馬町」
駅
徒歩3分
日比谷線
東京メトロ
「人形町」
駅
徒歩8分
日比谷線
都営地下鉄
「人形町」
駅
徒歩8分
都営浅草線
JR
「新日本橋」
駅
徒歩9分
総武線快速
規模
地上9階
竣工
1984年04月 リニューアル有
耐震
新耐震
気になる
全フロア
階数
面積
賃料+共益費(税別)
敷金
入居日
図面
詳細
問合せ
全フロア
9F
21.86坪
22,000円/坪
480,920円/月
5ヶ月
2026/6
詳細を見る
問合せ
和孝銀座8丁目ビル
ビル詳細を見る
所在地
東京都 中央区銀座8-10-4
最寄り駅
JR
「新橋」
駅
徒歩5分
京浜東北線 / 山手線 / 東海道本線 / 横須賀線 / 上野東京ライン
新交通ゆりかもめ
「新橋」
駅
徒歩5分
東京メトロ
「新橋」
駅
徒歩5分
銀座線
都営地下鉄
「新橋」
駅
徒歩5分
都営浅草線
東京メトロ
「銀座」
駅
徒歩6分
丸ノ内線 / 日比谷線 / 銀座線
都営地下鉄
「東銀座」
駅
徒歩6分
都営浅草線
規模
地上9階 地下1階
竣工
1984年09月 リニューアル有
耐震
新耐震
気になる
全フロア
階数
面積
賃料+共益費(税別)
敷金
入居日
図面
詳細
問合せ
全フロア
8F
21.87坪
22,000円/坪
481,140円/月
10ヶ月
2026/7月上旬
詳細を見る
問合せ
サクラマークス銀座612
ビル詳細を見る
所在地
東京都中央区銀座6-12-12
最寄り駅
東京メトロ
「東銀座」
駅
徒歩3分
日比谷線
都営地下鉄
「東銀座」
駅
徒歩3分
都営浅草線
東京メトロ
「銀座」
駅
徒歩6分
丸ノ内線 / 日比谷線 / 銀座線
都営地下鉄
「築地市場」
駅
徒歩9分
都営大江戸線
規模
地上13階
竣工
2020年02月
耐震
新耐震
気になる
全フロア
階数
面積
賃料+共益費(税別)
敷金
入居日
図面
詳細
問合せ
全フロア
6F
21.88坪
53,019円/坪
1,160,056円/月
10ヶ月
相談
詳細を見る
問合せ
VORT銀座DDI
ビル詳細を見る
所在地
東京都中央区銀座1-8-7
最寄り駅
東京メトロ
「銀座一丁目」
駅
徒歩2分
有楽町線
東京メトロ
「京橋」
駅
徒歩4分
銀座線
都営地下鉄
「宝町」
駅
徒歩6分
都営浅草線
規模
地上9階 地下1階
竣工
2017年03月
耐震
新耐震
気になる
全フロア
階数
面積
賃料+共益費(税別)
敷金
入居日
図面
詳細
問合せ
全フロア
1F
21.92坪
70,000円/坪
1,534,400円/月
10ヶ月
2026/7/22
詳細を見る
問合せ
スズコービル
ビル詳細を見る
所在地
東京都 中央区日本橋茅場町2-1-14
最寄り駅
東京メトロ
「茅場町」
駅
徒歩2分
日比谷線 / 東西線
都営地下鉄
「日本橋」
駅
徒歩4分
都営浅草線
東京メトロ
「日本橋」
駅
徒歩6分
東西線 / 銀座線
東京メトロ
「八丁堀」
駅
徒歩7分
日比谷線
JR
「八丁堀」
駅
徒歩8分
京葉線
規模
地上4階
竣工
1972年
耐震
旧耐震
気になる
全フロア
階数
面積
賃料+共益費(税別)
敷金
入居日
図面
詳細
問合せ
全フロア
2F
21.97坪
13,000円/坪
285,610円/月
6ヶ月
2026/4中旬
詳細を見る
問合せ
石川ビル
ビル詳細を見る
所在地
東京都 中央区日本橋茅場町2-14-5
最寄り駅
東京メトロ
「茅場町」
駅
徒歩2分
日比谷線 / 東西線
JR
「八丁堀」
駅
徒歩6分
京葉線
東京メトロ
「八丁堀」
駅
徒歩6分
日比谷線
都営地下鉄
「日本橋」
駅
徒歩9分
都営浅草線
規模
地上7階
竣工
1975年01月
耐震
旧耐震
気になる
全フロア
階数
面積
賃料+共益費(税別)
敷金
入居日
図面
詳細
問合せ
全フロア
2F
22.00坪
11,000円/坪
242,000円/月
お問合せください
即日
詳細を見る
問合せ
3F
22.00坪
11,000円/坪
242,000円/月
お問合せください
即日
詳細を見る
問合せ
ゑり円ビル
ビル詳細を見る
所在地
東京都 中央区銀座4-6-10
最寄り駅
東京メトロ
「銀座」
駅
徒歩2分
丸ノ内線 / 日比谷線 / 銀座線
都営地下鉄
「東銀座」
駅
徒歩2分
都営浅草線
東京メトロ
「銀座一丁目」
駅
徒歩6分
有楽町線
規模
地上9階 地下1階
竣工
1992年07月
耐震
新耐震
気になる
全フロア
階数
面積
賃料+共益費(税別)
敷金
入居日
図面
詳細
問合せ
全フロア
2F
22.00坪
70,000円/坪
1,540,000円/月
12ヶ月
即日
詳細を見る
問合せ
Nビル
ビル詳細を見る
所在地
東京都 中央区東日本橋2-28-3
最寄り駅
都営地下鉄
「浅草橋」
駅
徒歩4分
都営浅草線
都営地下鉄
「東日本橋」
駅
徒歩5分
都営浅草線
JR
「浅草橋」
駅
徒歩6分
総武線
JR
「馬喰町」
駅
徒歩7分
総武線快速
規模
地上10階
竣工
1987年08月 リニューアル有
耐震
新耐震
気になる
全フロア
階数
面積
賃料+共益費(税別)
敷金
入居日
図面
詳細
問合せ
全フロア
9F
22.04坪
16,500円/坪
363,660円/月
6ヶ月
2026/3
詳細を見る
問合せ
‹
1
2
3
4
5
6
7
8
9
10
...
15
16
›
TOPへ
フリーワード検索
閉じる