エリアから
検索
路線・駅から
検索
フリーワード
検索
お問い合わせ
相談窓口
問合せ/資料請求
無料
0120-350-323
平日9:00~18:00
検索履歴
Myリスト
気になる
を集めて
Myリストを作りましょう!
エリアから検索
路線・駅から検索
検索履歴
Myリスト
お問い合わせ相談窓口
TEL
無料電話相談( 0120-350-323)
HOME
東京都
TFTビル西館 7F
TFTビル西館
7F 201.45坪
気になる
このフロアにお問い合わせ
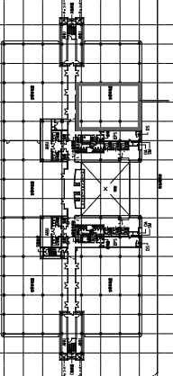
物件概要
所在地
東京都 江東区有明3-4-10
最寄り駅
新交通ゆりかもめ 「東京ビッグサイト」駅 徒歩3分
東京臨海高速鉄道 「国際展示場」駅 徒歩8分
東京りんかい線
新交通ゆりかもめ 「有明」駅 徒歩10分
竣工
1996年03月
耐震
新耐震
EV
10基
基準階面積
1,286.00坪
賃貸条件
階数
7F
面積
201.45坪 (665.95㎡)
賃料(⽉額/坪単価)
お問合わせください
共益費(⽉額/坪単価)
お問合わせください
敷金
お問合せください
更新料
無
償却費
無
入居日
即日
設備
空調
セントラル
床仕上げ
OAフロア
トイレ
室外男女別
天井高
2,700mm
TFTビル西館
その他募集中の区画
一括選択
選択クリア
階数
面積
賃料+共益費(税別)
敷金
入居日
図面
詳細
問合せ
気になる
6F
104.96坪
お問合せください
お問合せください
2026/4
詳細を見る
問合せ
7F
105.99坪
お問合せください
お問合せください
即日
詳細を見る
問合せ
7F
95.46坪
お問合せください
お問合せください
即日
詳細を見る
問合せ
8F
104.96坪
お問合せください
お問合せください
即日
詳細を見る
問合せ
チェックした区画を一括で
気になる
問合せ
他のビルの
募集中の区画を見つける
エリアで探す
路線・駅で探す
ビル名で探す
TOPへ
フリーワード検索
閉じる