物件概要
所在地
東京都 江東区青海2-4-32
最寄り駅
新交通ゆりかもめ 「テレコムセンター」駅 徒歩4分
新交通ゆりかもめ 「東京国際クルーズターミナル」駅 徒歩9分
竣工
1996年01月
耐震
新耐震
EV
16基
基準階面積
878.00坪
賃貸条件
階数
10F
面積
55.96坪 (184.99㎡)
賃料(⽉額/坪単価)
お問合わせください
共益費(⽉額/坪単価)
お問合わせください
敷金
12ヶ月
更新料
償却費
入居日
2026/5
設備
空調
セントラル
床仕上げ
OAフロア
トイレ
室外男女別
天井高
2,600mm
タイム24ビル その他募集中の区画
一括選択
選択クリア
階数 面積 賃料+共益費(税別) 敷金 入居日 図面 詳細 問合せ 気になる
4F 64.58坪 お問合せください 12ヶ月 即日 図面 詳細を見る メールアイコン 問合せ 気になるアイコン
6F 28.97坪 お問合せください 12ヶ月 2026/4/2 図面 詳細を見る メールアイコン 問合せ 気になるアイコン
7F 28.68坪 お問合せください 12ヶ月 即日 図面 詳細を見る メールアイコン 問合せ 気になるアイコン
7F 58.37坪 お問合せください 12ヶ月 即日 図面 詳細を見る メールアイコン 問合せ 気になるアイコン
7F 115.61坪 お問合せください 12ヶ月 即日 図面 詳細を見る メールアイコン 問合せ 気になるアイコン
7F 86.92坪 お問合せください 12ヶ月 即日 図面 詳細を見る メールアイコン 問合せ 気になるアイコン
7F 158.67坪 お問合せください 12ヶ月 相談 図面 詳細を見る メールアイコン 問合せ 気になるアイコン
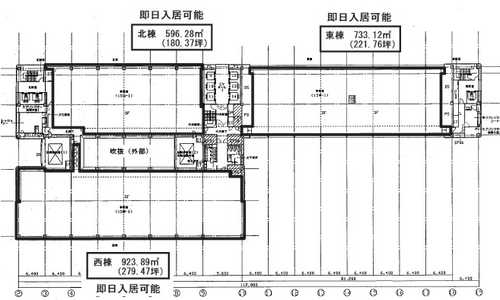
8F 243.56坪 お問合せください 12ヶ月 即日 図面 詳細を見る メールアイコン 問合せ 気になるアイコン
8F 87.35坪 お問合せください 12ヶ月 即日 図面 詳細を見る メールアイコン 問合せ 気になるアイコン
8F 92.17坪 お問合せください 12ヶ月 即日 図面 詳細を見る メールアイコン 問合せ 気になるアイコン
10F 28.97坪 お問合せください 12ヶ月 即日 図面 詳細を見る メールアイコン 問合せ 気になるアイコン
10F 107.52坪 お問合せください 12ヶ月 即日 図面 詳細を見る メールアイコン 問合せ 気になるアイコン
10F 64.58坪 お問合せください 12ヶ月 即日 図面 詳細を見る メールアイコン 問合せ 気になるアイコン
15F 223.24坪 お問合せください 12ヶ月 2026/7/1 図面 詳細を見る メールアイコン 問合せ 気になるアイコン
チェックした区画を一括で 気になるアイコン 気になる メールアイコン 問合せ
フリーワード検索