エリアから
検索
路線・駅から
検索
フリーワード
検索
オフィス移転の
プロに相談
問合せ/資料請求
無料
0120-350-323
平日9:00~18:00
検索履歴
Myリスト
気になる
を集めて
Myリストを作りましょう!
エリアから検索
路線・駅から検索
検索履歴
Myリスト
お問い合わせ相談窓口
TEL
無料電話相談( 0120-350-323)
HOME
東京都
ヒューリック神田須田町ビル B1F
ヒューリック神田須田町ビル
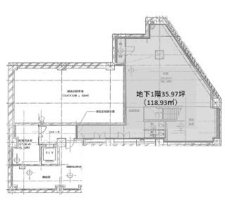
B1F 35.97坪
この区画の募集は終了しました
気になる
物件概要
所在地
東京都 千代田区神田須田町1-14-1
竣工
2004年06月
耐震
新耐震
EV
2基
基準階面積
77.27坪
賃貸条件
階数
B1F
面積
35.97坪 (118.91㎡)
賃料(⽉額/坪単価)
503,580円 (14,000円) ※税別
共益費(⽉額/坪単価)
賃料に含む
敷金
6ヶ月
更新料
1ヶ月
償却費
無
入居日
相談
設備
空調
個別
床仕上げ
OAフロア
トイレ
室内男女別
天井高
2,500mm
ヒューリック神田須田町ビル
その他募集中の区画
一括選択
選択クリア
階数
面積
賃料+共益費(税別)
敷金
入居日
図面
詳細
問合せ
気になる
7F
80.73坪
25,000円/坪
2,018,250円/月
6ヶ月
相談
詳細を見る
問合せ
9F
63.52坪
25,000円/坪
1,588,000円/月
6ヶ月
即日
詳細を見る
問合せ
チェックした区画を一括で
気になる
問合せ
他のビルの
募集中の区画を見つける
エリアで探す
路線・駅で探す
ビル名で探す
TOPへ
フリーワード検索
閉じる