新中野FKビル 3F 64.22坪

この区画の募集は終了しました
物件概要
所在地
東京都 中野区本町6-16-12
最寄り駅
東京メトロ 「新中野」駅 徒歩2分
丸ノ内線
東京メトロ 「東高円寺」駅 徒歩11分
丸ノ内線
東京メトロ 「中野富士見町」駅 徒歩12分
丸ノ内分岐線
竣工
1993年03月
耐震
新耐震
EV
1基
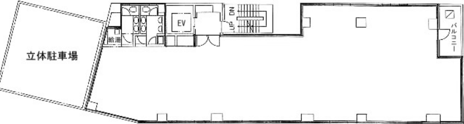
基準階面積
64.22坪
賃貸条件
階数
3F
面積
64.22坪 (212.3㎡)
賃料(⽉額/坪単価)
834,860円 (13,000円) ※税別
共益費(⽉額/坪単価)
賃料に含む
敷金
8ヶ月
更新料
1ヶ月
償却費
1ヶ月
入居日
即日
設備
空調
個別
床仕上げ
OAフロア
トイレ
室内男女別
天井高
2,550mm
新中野FKビル その他募集中の区画
只今その他募集中の区画は御座いません。
フリーワード検索