物件概要
所在地
東京都千代田区紀尾井町3-27
最寄り駅
東京メトロ 「麹町」駅 徒歩4分
有楽町線
東京メトロ 「永田町」駅 徒歩5分
半蔵門線 / 南北線 / 有楽町線
東京メトロ 「半蔵門」駅 徒歩7分
半蔵門線
竣工
2026年03月
耐震
新耐震
EV
3基
基準階面積
231.25坪
賃貸条件
階数
3F
面積
112.51坪 (371.93㎡)
賃料(⽉額/坪単価)
お問合わせください
共益費(⽉額/坪単価)
お問合わせください
敷金
12ヶ月
更新料
償却費
入居日
2026/4
設備
空調
個別
床仕上げ
OAフロア
トイレ
室外男女別
天井高
2,800mm
明治薬科大学 剛堂会館 その他募集中の区画
一括選択
選択クリア
階数 面積 賃料+共益費(税別) 敷金 入居日 図面 詳細 問合せ 気になる
1F 47.10坪 お問合せください 12ヶ月 2026/4 図面 詳細を見る メールアイコン 問合せ 気になるアイコン
3F 118.74坪 お問合せください 12ヶ月 2026/4 図面 詳細を見る メールアイコン 問合せ 気になるアイコン
4F 31.89坪 お問合せください 12ヶ月 2026/4 図面 詳細を見る メールアイコン 問合せ 気になるアイコン
4F 81.71坪 お問合せください 12ヶ月 2026/4 図面 詳細を見る メールアイコン 問合せ 気になるアイコン
4F 43.43坪 お問合せください 12ヶ月 相談 図面 詳細を見る メールアイコン 問合せ 気になるアイコン
4F 30.79坪 お問合せください 12ヶ月 相談 図面 詳細を見る メールアイコン 問合せ 気になるアイコン
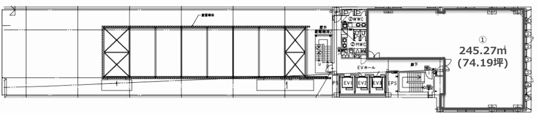
8F 74.19坪 お問合せください 12ヶ月 2026/4 図面 詳細を見る メールアイコン 問合せ 気になるアイコン
チェックした区画を一括で 気になるアイコン 気になる メールアイコン 問合せ
フリーワード検索