物件概要
所在地
東京都大田区蒲田4-37-5
最寄り駅
京浜急行鉄道 「京急蒲田」駅 徒歩4分
京浜急行本線 / 京浜急行空港線
JR 「蒲田」駅 徒歩10分
京浜東北線
東急電鉄 「蒲田」駅 徒歩10分
東急多摩川線 / 東急池上線
竣工
2024年08月
耐震
新耐震
EV
1基
賃貸条件
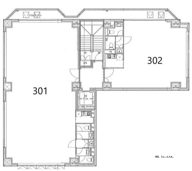
階数
3F
面積
43.50坪 (143.8㎡)
賃料(⽉額/坪単価)
652,500円 (15,000円) ※税別
共益費(⽉額/坪単価)
71,906円 (1,653円) ※税別
敷金
6ヶ月
更新料
1ヶ月
償却費
2ヶ月
入居日
即日
設備
空調
未調査
床仕上げ
未調査
トイレ
室内男女別
天井高
2,700mm
ハネサム22ビル その他募集中の区画
一括選択
選択クリア
階数 面積 賃料+共益費(税別) 敷金 入居日 図面 詳細 問合せ 気になる
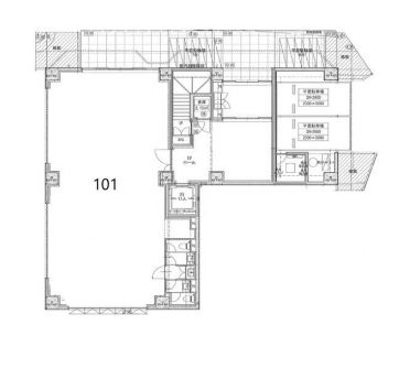
1F 43.50坪 21,653円/坪
941,905円/月
6ヶ月 相談 図面 詳細を見る メールアイコン 問合せ 気になるアイコン
チェックした区画を一括で 気になるアイコン 気になる メールアイコン 問合せ
フリーワード検索