エリアから
検索
路線・駅から
検索
フリーワード
検索
お問い合わせ
相談窓口
問合せ/資料請求
無料
0120-350-323
平日9:00~18:00
検索履歴
Myリスト
気になる
を集めて
Myリストを作りましょう!
エリアから検索
路線・駅から検索
検索履歴
Myリスト
お問い合わせ相談窓口
TEL
無料電話相談( 0120-350-323)
HOME
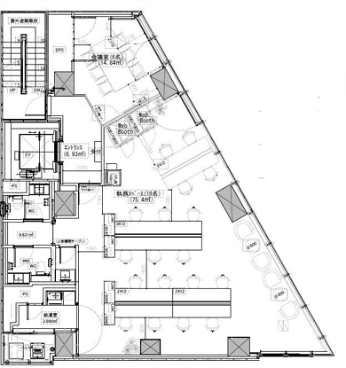
アトリウム東新橋 6F
アトリウム東新橋
6F 35.68坪
この区画の募集は終了しました
気になる
物件概要
所在地
東京都港区東新橋1-1-2
最寄り駅
JR東海道本線「新橋」駅 徒歩3分
JR横須賀線「新橋」駅 徒歩3分
JR上野東京ライン「新橋」駅 徒歩3分
JR京浜東北線「新橋」駅 徒歩3分
JR山手線「新橋」駅 徒歩3分
新交通ゆりかもめ「新橋」駅 徒歩3分
東京メトロ銀座線「新橋」駅 徒歩3分
都営浅草線「新橋」駅 徒歩3分
新交通ゆりかもめ「汐留」駅 徒歩4分
都営大江戸線「汐留」駅 徒歩4分
都営大江戸線「築地市場」駅 徒歩12分
駅をもっと見る
竣工
2024年04月
耐震
新耐震
EV
1基
基準階面積
35.40坪
賃貸条件
階数
6F
面積
35.68坪 (117.95㎡)
賃料(⽉額/坪単価)
お問合わせください
共益費(⽉額/坪単価)
お問合わせください
敷金
10ヶ月
更新料
1ヶ月
償却費
無
入居日
即日
設備
空調
個別
床仕上げ
OAフロア
トイレ
室内男女別
天井高
2,600mm
アトリウム東新橋
その他募集中の区画
一括選択
選択クリア
階数
面積
賃料+共益費(税別)
敷金
入居日
図面
詳細
問合せ
気になる
10F
34.50坪
お問合せください
10ヶ月
即日
詳細を見る
問合せ
11F
34.50坪
お問合せください
10ヶ月
即日
詳細を見る
問合せ
12F
34.50坪
お問合せください
10ヶ月
即日
詳細を見る
問合せ
チェックした区画を一括で
気になる
問合せ
他のビルの
募集中の区画を見つける
エリアで探す
路線・駅で探す
ビル名で探す
TOPへ
フリーワード検索
閉じる