物件概要
所在地
東京都港区赤坂2-17-22
最寄り駅
東京メトロ 「溜池山王」駅 徒歩5分
南北線 / 銀座線
東京メトロ 「六本木一丁目」駅 徒歩7分
南北線
東京メトロ 「赤坂」駅 徒歩8分
千代田線
竣工
2025年10月
耐震
免震
EV
39基
基準階面積
1,024.91坪
賃貸条件
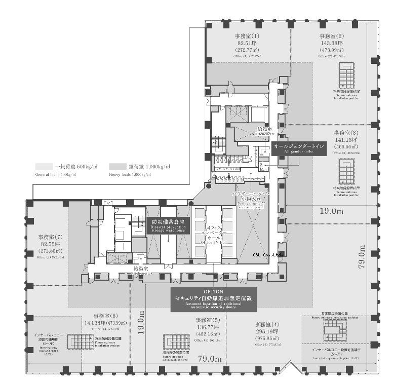
階数
5F
面積
136.69坪 (451.87㎡)
賃料(⽉額/坪単価)
お問合わせください
共益費(⽉額/坪単価)
お問合わせください
敷金
12ヶ月
更新料
償却費
入居日
2026/8
設備
空調
個別
床仕上げ
OAフロア
トイレ
室外男女別
天井高
2,900mm
赤坂トラストタワー その他募集中の区画
一括選択
選択クリア
階数 面積 賃料+共益費(税別) 敷金 入居日 図面 詳細 問合せ 気になる
3F 37.70坪 お問合せください 12ヶ月 相談 図面 詳細を見る メールアイコン 問合せ 気になるアイコン
5F 143.38坪 お問合せください 12ヶ月 2026/8 図面 詳細を見る メールアイコン 問合せ 気になるアイコン
22F 798.40坪 お問合せください 12ヶ月 相談 図面 詳細を見る メールアイコン 問合せ 気になるアイコン
チェックした区画を一括で 気になるアイコン 気になる メールアイコン 問合せ
フリーワード検索