エリアから
検索
路線・駅から
検索
フリーワード
検索
お問い合わせ
相談窓口
問合せ/資料請求
無料
0120-350-323
平日9:00~18:00
検索履歴
Myリスト
気になる
を集めて
Myリストを作りましょう!
エリアから検索
路線・駅から検索
検索履歴
Myリスト
お問い合わせ相談窓口
TEL
無料電話相談( 0120-350-323)
HOME
横浜コネクトスクエア 11F
横浜コネクトスクエア
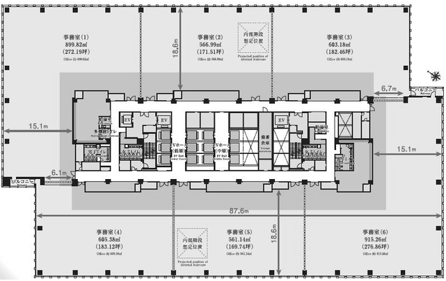
11F 276.87坪
気になる
このフロアにお問い合わせ
物件概要
所在地
神奈川県横浜市西区みなとみらい3-3-3
最寄り駅
横浜高速鉄道 「みなとみらい」駅 徒歩5分
横浜みなとみらい線
JR 「桜木町」駅 徒歩10分
根岸線
横浜市営地下鉄ブルーライン 「桜木町」駅 徒歩10分
横浜市ブルーライン
竣工
2023年01月
耐震
新耐震
EV
15基
基準階面積
1,255.00坪
賃貸条件
階数
11F
面積
276.87坪 (915.27㎡)
賃料(⽉額/坪単価)
お問合わせください
共益費(⽉額/坪単価)
お問合わせください
敷金
12ヶ月
更新料
無
償却費
無
入居日
即日
設備
空調
個別
床仕上げ
OAフロア
トイレ
室外男女別
天井高
2,900mm
横浜コネクトスクエア
その他募集中の区画
一括選択
選択クリア
階数
面積
賃料+共益費(税別)
敷金
入居日
図面
詳細
問合せ
気になる
7F
630.88坪
お問合せください
12ヶ月
即日
詳細を見る
問合せ
15F
1,255.99坪
お問合せください
12ヶ月
即日
詳細を見る
問合せ
16F
1,255.99坪
お問合せください
12ヶ月
即日
詳細を見る
問合せ
17F
1,255.99坪
お問合せください
12ヶ月
即日
詳細を見る
問合せ
チェックした区画を一括で
気になる
問合せ
他のビルの
募集中の区画を見つける
エリアで探す
路線・駅で探す
ビル名で探す
TOPへ
フリーワード検索
閉じる