エリアから
検索
路線・駅から
検索
フリーワード
検索
お問い合わせ
相談窓口
問合せ/資料請求
無料
0120-350-323
平日9:00~18:00
検索履歴
Myリスト
気になる
を集めて
Myリストを作りましょう!
エリアから検索
路線・駅から検索
検索履歴
Myリスト
お問い合わせ相談窓口
TEL
無料電話相談( 0120-350-323)
HOME
メブクス豊洲 11F
メブクス豊洲
11F 295.48坪
気になる
このフロアにお問い合わせ
物件概要
所在地
東京都江東区豊洲6-4-34
最寄り駅
新交通ゆりかもめ 「市場前」駅 徒歩1分
新交通ゆりかもめ 「新豊洲」駅 徒歩8分
新交通ゆりかもめ 「有明テニスの森」駅 徒歩11分
竣工
2021年08月
耐震
免震
EV
15基
基準階面積
1,984.25坪
賃貸条件
階数
11F
面積
295.48坪 (976.79㎡)
賃料(⽉額/坪単価)
お問合わせください
共益費(⽉額/坪単価)
お問合わせください
敷金
12ヶ月
更新料
無
償却費
無
入居日
即日
設備
空調
セントラル
床仕上げ
OAフロア
トイレ
室外男女別
天井高
3,500mm
メブクス豊洲
その他募集中の区画
一括選択
選択クリア
階数
面積
賃料+共益費(税別)
敷金
入居日
図面
詳細
問合せ
気になる
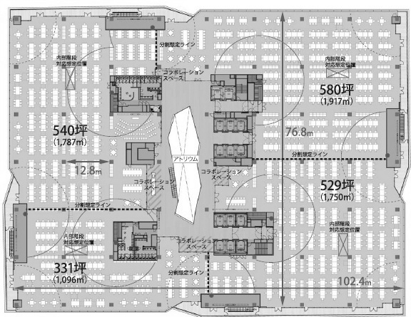
3F
541.53坪
お問合せください
12ヶ月
即日
詳細を見る
問合せ
5F
332.25坪
お問合せください
12ヶ月
即日
詳細を見る
問合せ
9F
529.52坪
お問合せください
12ヶ月
即日
詳細を見る
問合せ
10F
528.91坪
お問合せください
12ヶ月
相談
詳細を見る
問合せ
10F
846.42坪
お問合せください
12ヶ月
即日
詳細を見る
問合せ
11F
1,459.75坪
お問合せください
12ヶ月
即日
詳細を見る
問合せ
チェックした区画を一括で
気になる
問合せ
他のビルの
募集中の区画を見つける
エリアで探す
路線・駅で探す
ビル名で探す
TOPへ
フリーワード検索
閉じる