物件概要
所在地
東京都 豊島区駒込3-3-17
最寄り駅
JR 「駒込」駅 徒歩2分
山手線
東京メトロ 「駒込」駅 徒歩2分
南北線
JR 「巣鴨」駅 徒歩12分
山手線
都営地下鉄 「巣鴨」駅 徒歩12分
都営三田線
竣工
1993年03月
耐震
新耐震
EV
1基
基準階面積
51.94坪
賃貸条件
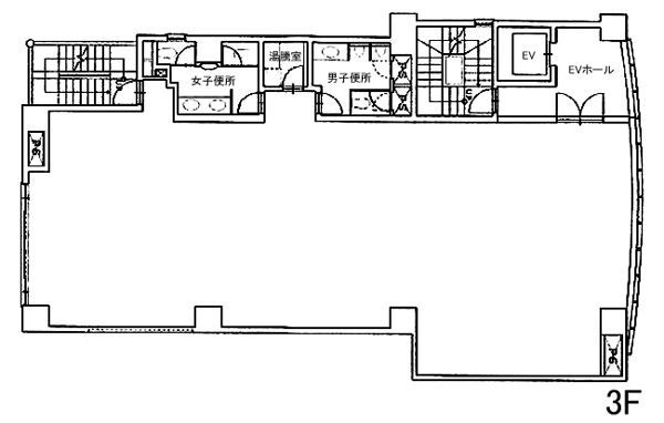
階数
3F
面積
57.15坪 (188.93㎡)
賃料(⽉額/坪単価)
お問合わせください
共益費(⽉額/坪単価)
お問合わせください
敷金
12ヶ月
更新料
償却費
入居日
2026/5
設備
空調
個別
床仕上げ
OAフロア
トイレ
室内男女別
天井高
2,440mm
東宝駒込ビル その他募集中の区画
一括選択
選択クリア
階数 面積 賃料+共益費(税別) 敷金 入居日 図面 詳細 問合せ 気になる
7F 57.15坪 お問合せください 12ヶ月 2026/5 図面 詳細を見る メールアイコン 問合せ 気になるアイコン
チェックした区画を一括で 気になるアイコン 気になる メールアイコン 問合せ
フリーワード検索