エリアから
検索
路線・駅から
検索
フリーワード
検索
お問い合わせ
相談窓口
問合せ/資料請求
無料
0120-350-323
平日9:00~18:00
検索履歴
Myリスト
気になる
を集めて
Myリストを作りましょう!
エリアから検索
路線・駅から検索
検索履歴
Myリスト
お問い合わせ相談窓口
TEL
無料電話相談( 0120-350-323)
HOME
東京都
いちご渋谷道玄坂ビル 1F
いちご渋谷道玄坂ビル
1F 39.26坪
気になる
このフロアにお問い合わせ
物件概要
所在地
東京都 渋谷区円山町28-3
最寄り駅
京王電鉄 「神泉」駅 徒歩3分
京王井の頭線
JR 「渋谷」駅 徒歩8分
埼京線 / 山手線 / 湘南新宿ライン / 相鉄・JR直通線
京王電鉄 「渋谷」駅 徒歩8分
京王井の頭線
東京メトロ 「渋谷」駅 徒歩8分
半蔵門線 / 銀座線 / 副都心線
東急電鉄 「渋谷」駅 徒歩8分
東急東横線 / 東急田園都市線
竣工
1994年09月
耐震
新耐震
EV
2基
基準階面積
100.49坪
賃貸条件
階数
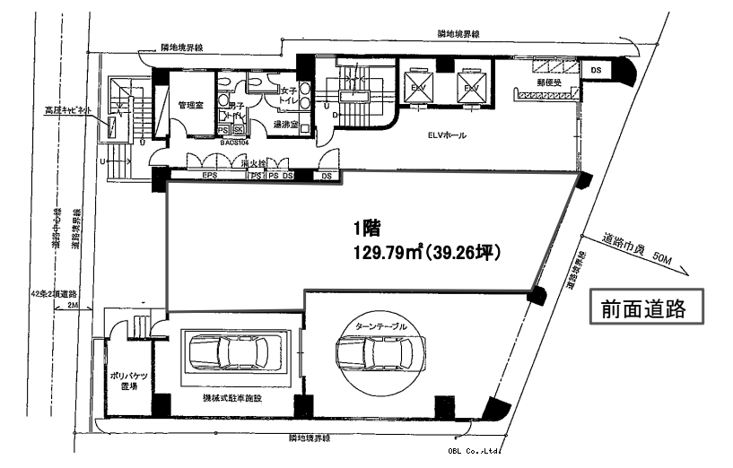
1F
面積
39.26坪 (129.79㎡)
賃料(⽉額/坪単価)
お問合わせください
共益費(⽉額/坪単価)
お問合わせください
敷金
お問合せください
更新料
無
償却費
無
入居日
即日
設備
空調
個別
床仕上げ
OAフロア
トイレ
室外男女別
天井高
2,600mm
いちご渋谷道玄坂ビル
その他募集中の区画
一括選択
選択クリア
階数
面積
賃料+共益費(税別)
敷金
入居日
図面
詳細
問合せ
気になる
4F
61.62坪
お問合せください
お問合せください
即日
詳細を見る
問合せ
チェックした区画を一括で
気になる
問合せ
他のビルの
募集中の区画を見つける
エリアで探す
路線・駅で探す
ビル名で探す
TOPへ
フリーワード検索
閉じる