物件概要
所在地
東京都 新宿区西新宿6-16-6
最寄り駅
都営地下鉄 「西新宿五丁目」駅 徒歩5分
都営大江戸線
都営地下鉄 「都庁前」駅 徒歩6分
都営大江戸線
東京メトロ 「西新宿」駅 徒歩7分
丸ノ内線
竣工
1985年04月 リニューアル有
耐震
新耐震
EV
2基
基準階面積
300.00坪
賃貸条件
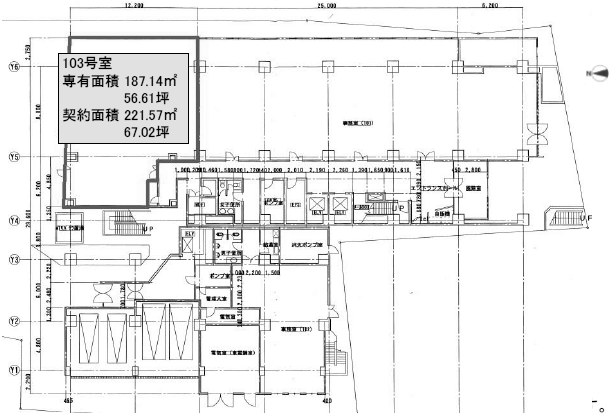
階数
1F
面積
67.02坪 (221.55㎡)
賃料(⽉額/坪単価)
971,790円 (14,500円) ※税別
共益費(⽉額/坪単価)
134,040円 (2,000円) ※税別
敷金
6ヶ月
更新料
償却費
1ヶ月
入居日
即日
設備
空調
個別
床仕上げ
OAフロア
トイレ
男女別
天井高
2,350mm
新宿タツミビル その他募集中の区画
一括選択
選択クリア
階数 面積 賃料+共益費(税別) 敷金 入居日 図面 詳細 問合せ 気になる
3F 112.29坪 16,500円/坪
1,852,785円/月
6ヶ月 即日 図面 詳細を見る メールアイコン 問合せ 気になるアイコン
8F 58.15坪 16,500円/坪
959,475円/月
6ヶ月 即日 図面 詳細を見る メールアイコン 問合せ 気になるアイコン
9F 149.87坪 16,500円/坪
2,472,855円/月
6ヶ月 即日 図面 詳細を見る メールアイコン 問合せ 気になるアイコン
チェックした区画を一括で 気になるアイコン 気になる メールアイコン 問合せ
フリーワード検索