渡菱ビル
6F
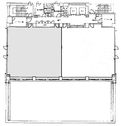
44.35坪
この区画の募集は終了しました
物件概要
- 所在地
-
東京都 新宿区新宿5-17-17
- 最寄り駅
-
東京メトロ 「新宿三丁目」駅
徒歩3分
丸ノ内線
東京メトロ 「新宿三丁目」駅
徒歩3分
副都心線
都営地下鉄 「新宿三丁目」駅
徒歩3分
都営新宿線
JR 「新宿」駅
徒歩6分
中央線
JR 「新宿」駅
徒歩6分
埼京線
JR 「新宿」駅
徒歩6分
山手線
JR 「新宿」駅
徒歩6分
湘南新宿ライン
JR 「新宿」駅
徒歩6分
総武線
小田急電鉄 「新宿」駅
徒歩6分
小田急小田原線
東京メトロ 「新宿」駅
徒歩6分
丸ノ内線
JR 「新宿」駅
徒歩6分
相鉄・JR直通線
都営地下鉄 「新宿西口」駅
徒歩9分
都営大江戸線
- 竣工
-
1988年03月
- 耐震
-
新耐震
- EV
-
2基
- 基準階面積
-
156.13坪
賃貸条件
- 階数
- 6F
- 面積
-
44.35坪
(146.61㎡)
- 賃料(⽉額/坪単価)
-
お問合わせください
- 共益費(⽉額/坪単価)
-
お問合わせください
- 敷金
-
12ヶ月
- 更新料
-
無
- 償却費
-
無
- 入居日
- 2025/12
設備
- 空調
- 個別
- 床仕上げ
- OAフロア
- トイレ
- 室外男女別
- 天井高
- 2,550mm