エリアから
検索
路線・駅から
検索
フリーワード
検索
お問い合わせ
相談窓口
問合せ/資料請求
無料
0120-350-323
平日9:00~18:00
検索履歴
Myリスト
気になる
を集めて
Myリストを作りましょう!
エリアから検索
路線・駅から検索
検索履歴
Myリスト
お問い合わせ相談窓口
TEL
無料電話相談( 0120-350-323)
HOME
東京都
@WORK SHINJUKUGYOEN 9F
@WORK SHINJUKUGYOEN
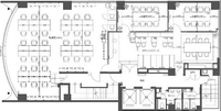
9F 74.69坪
気になる
このフロアにお問い合わせ
物件概要
所在地
東京都 新宿区新宿2-1-9
最寄り駅
東京メトロ 「新宿御苑前」駅 徒歩1分
丸ノ内線
東京メトロ 「新宿三丁目」駅 徒歩5分
丸ノ内線 / 副都心線
都営地下鉄 「新宿三丁目」駅 徒歩5分
都営新宿線
JR 「新宿」駅 徒歩11分
中央線 / 埼京線 / 山手線 / 湘南新宿ライン / 総武線 / 相鉄・JR直通線
竣工
1988年09月
耐震
新耐震
EV
2基
基準階面積
63.11坪
賃貸条件
階数
9F
面積
74.69坪 (246.91㎡)
賃料(⽉額/坪単価)
お問合わせください
共益費(⽉額/坪単価)
お問合わせください
敷金
お問合せください
更新料
無
償却費
無
入居日
2026/3
設備
空調
個別
床仕上げ
OAフロア
トイレ
室外男女別
天井高
3,000mm
@WORK SHINJUKUGYOEN
その他募集中の区画
一括選択
選択クリア
階数
面積
賃料+共益費(税別)
敷金
入居日
図面
詳細
問合せ
気になる
2F
72.85坪
お問合せください
お問合せください
2026/3
詳細を見る
問合せ
4F
73.05坪
お問合せください
お問合せください
2026/3
詳細を見る
問合せ
チェックした区画を一括で
気になる
問合せ
他のビルの
募集中の区画を見つける
エリアで探す
路線・駅で探す
ビル名で探す
TOPへ
フリーワード検索
閉じる