物件概要
- 所在地
-
東京都 新宿区新宿1-16-10
- 最寄り駅
-
東京メトロ 「新宿御苑前」駅
徒歩4分
丸ノ内線
東京メトロ 「新宿三丁目」駅
徒歩5分
丸ノ内線 / 副都心線
都営地下鉄 「新宿三丁目」駅
徒歩5分
都営新宿線
- 竣工
-
1986年05月
- 耐震
-
新耐震
- EV
-
1基
- 基準階面積
-
149.12坪
賃貸条件
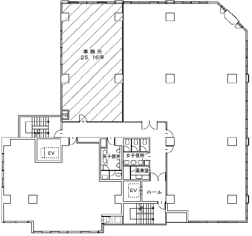
- 階数
- 3F
- 面積
-
25.16坪
(83.17㎡)
- 賃料(⽉額/坪単価)
-
お問合わせください
- 共益費(⽉額/坪単価)
-
お問合わせください
- 敷金
-
12ヶ月
- 更新料
-
無
- 償却費
-
無
- 入居日
- 2026/3/1
設備
- 空調
- 個別
- 床仕上げ
- OAフロア
- トイレ
- 室外男女別
- 天井高
- 2,430mm