エリアから
検索
路線・駅から
検索
フリーワード
検索
お問い合わせ
相談窓口
問合せ/資料請求
無料
0120-350-323
平日9:00~18:00
検索履歴
Myリスト
気になる
を集めて
Myリストを作りましょう!
エリアから検索
路線・駅から検索
検索履歴
Myリスト
お問い合わせ相談窓口
TEL
無料電話相談( 0120-350-323)
HOME
神奈川県
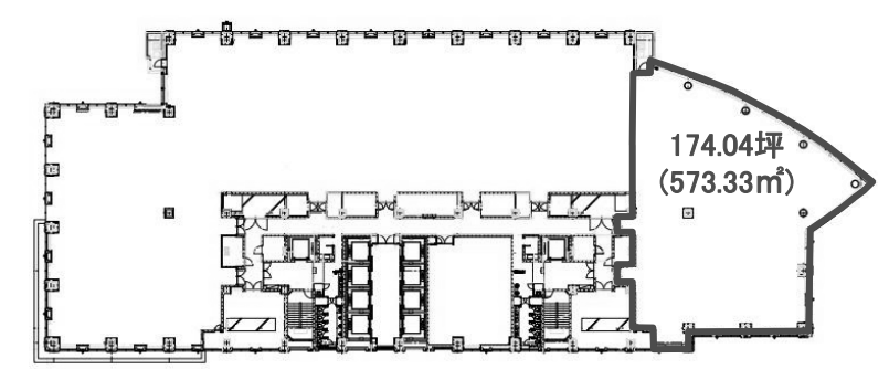
ミューザ川崎セントラルタワー 24F
ミューザ川崎セントラルタワー
24F 174.04坪
気になる
このフロアにお問い合わせ
物件概要
所在地
神奈川県 川崎市幸区大宮町1310
最寄り駅
JR 「川崎」駅 徒歩3分
京浜東北線 / 南武線 / 東海道本線 / 上野東京ライン
京浜急行鉄道 「京急川崎」駅 徒歩8分
京浜急行大師線 / 京浜急行本線
JR 「八丁畷」駅 徒歩12分
南武支線
竣工
2003年12月
耐震
新耐震
EV
16基
基準階面積
639.00坪
賃貸条件
階数
24F
面積
174.04坪 (575.34㎡)
賃料(⽉額/坪単価)
お問合わせください
共益費(⽉額/坪単価)
お問合わせください
敷金
12ヶ月
更新料
無
償却費
無
入居日
即日
設備
空調
セントラル
床仕上げ
OAフロア
トイレ
室外男女別
天井高
2,700mm
ミューザ川崎セントラルタワー
その他募集中の区画
一括選択
選択クリア
階数
面積
賃料+共益費(税別)
敷金
入居日
図面
詳細
問合せ
気になる
26F
174.04坪
お問合せください
12ヶ月
即日
詳細を見る
問合せ
チェックした区画を一括で
気になる
問合せ
他のビルの
募集中の区画を見つける
エリアで探す
路線・駅で探す
ビル名で探す
TOPへ
フリーワード検索
閉じる