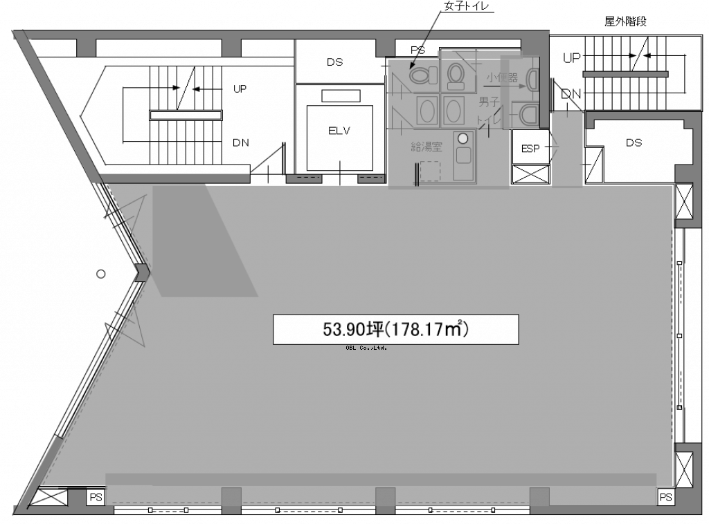
丸八青山ビル 9F 53.90坪

この区画の募集は終了しました
物件概要
所在地
東京都 港区南青山2-27-27
最寄り駅
東京メトロ 「外苑前」駅 徒歩2分
銀座線
東京メトロ 「表参道」駅 徒歩8分
千代田線
東京メトロ 「表参道」駅 徒歩8分
半蔵門線
東京メトロ 「表参道」駅 徒歩8分
銀座線
東京メトロ 「青山一丁目」駅 徒歩10分
半蔵門線
東京メトロ 「青山一丁目」駅 徒歩10分
銀座線
都営地下鉄 「青山一丁目」駅 徒歩10分
都営大江戸線
竣工
1987年03月
耐震
新耐震
EV
1基
基準階面積
53.90坪
賃貸条件
階数
9F
面積
53.90坪 (178.18㎡)
賃料(⽉額/坪単価)
お問合わせください
共益費(⽉額/坪単価)
お問合わせください
敷金
12ヶ月
更新料
償却費
入居日
即日
設備
空調
個別
床仕上げ
未調査
トイレ
室内男女別
天井高
-
丸八青山ビル その他募集中の区画
只今その他募集中の区画は御座いません。
フリーワード検索