物件概要
- 所在地
-
東京都 港区北青山2-11-3
- 最寄り駅
-
東京メトロ 「外苑前」駅
徒歩4分
銀座線
東京メトロ 「表参道」駅
徒歩12分
千代田線 / 半蔵門線 / 銀座線
- 竣工
-
1966年09月
リニューアル有
- 耐震
-
耐震補強済
- EV
-
2基
- 基準階面積
-
549.96坪
賃貸条件
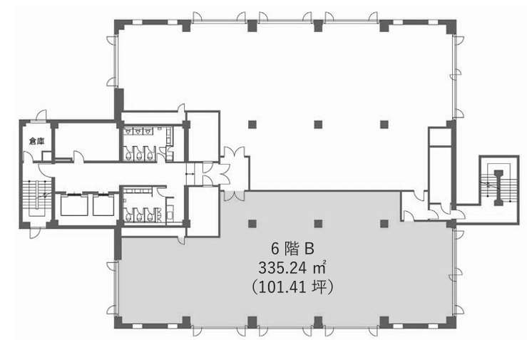
- 階数
- 6F
- 面積
-
101.41坪
(335.24㎡)
- 賃料(⽉額/坪単価)
-
お問合わせください
- 共益費(⽉額/坪単価)
-
お問合わせください
- 敷金
-
12ヶ月
- 更新料
-
無
- 償却費
-
無
- 入居日
- 2026/5
設備
- 空調
- 個別
- 床仕上げ
- OAフロア
- トイレ
- 室外男女別
- 天井高
- 2,500mm