物件概要
- 所在地
-
東京都 港区赤坂2-14-5
- 最寄り駅
-
東京メトロ 「赤坂」駅
徒歩2分
千代田線
東京メトロ 「溜池山王」駅
徒歩5分
南北線 / 銀座線
東京メトロ 「赤坂見附」駅
徒歩7分
丸ノ内線 / 銀座線
- 竣工
-
1990年09月
リニューアル有
- 耐震
-
新耐震
- EV
-
3基
- 基準階面積
-
265.04坪
賃貸条件
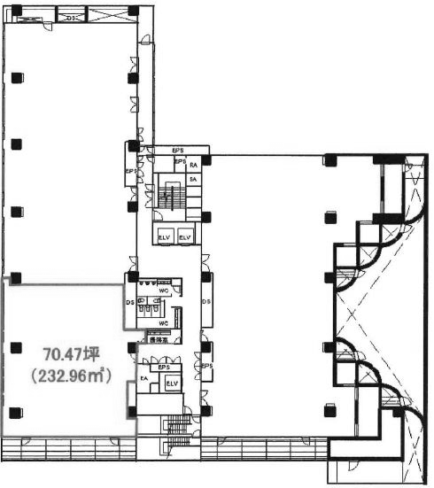
- 階数
- 4F
- 面積
-
70.47坪
(232.96㎡)
- 賃料(⽉額/坪単価)
-
お問合わせください
- 共益費(⽉額/坪単価)
-
お問合わせください
- 敷金
-
12ヶ月
- 更新料
-
無
- 償却費
-
無
- 入居日
- 2026/5/1
設備
- 空調
- 個別
- 床仕上げ
- OAフロア
- トイレ
- 室外男女別
- 天井高
- 2,600mm