物件概要
所在地
東京都 港区三田3-9-7
最寄り駅
京浜急行鉄道 「泉岳寺」駅 徒歩3分
京浜急行本線
都営地下鉄 「泉岳寺」駅 徒歩3分
都営浅草線
JR 「高輪ゲートウェイ」駅 徒歩11分
京浜東北線 / 山手線
竣工
1985年01月 リニューアル有
耐震
新耐震
EV
2基
基準階面積
192.02坪
賃貸条件
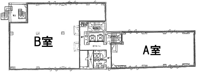
階数
4F
面積
87.31坪 (288.63㎡)
賃料(⽉額/坪単価)
1,484,270円 (17,000円) ※税別
共益費(⽉額/坪単価)
賃料に含む
敷金
12ヶ月
更新料
償却費
入居日
2026/2/1
設備
空調
個別
床仕上げ
OAフロア
トイレ
室外男女別
天井高
2,430mm
三田三好ビル その他募集中の区画
一括選択
選択クリア
階数 面積 賃料+共益費(税別) 敷金 入居日 図面 詳細 問合せ 気になる
2F 69.51坪 17,000円/坪
1,181,670円/月
12ヶ月 2026/5/1 図面 詳細を見る メールアイコン 問合せ 気になるアイコン
3F 69.51坪 17,000円/坪
1,181,670円/月
12ヶ月 2026/5/1 図面 詳細を見る メールアイコン 問合せ 気になるアイコン
7F 69.51坪 17,000円/坪
1,181,670円/月
12ヶ月 2026/2/1 図面 詳細を見る メールアイコン 問合せ 気になるアイコン
チェックした区画を一括で 気になるアイコン 気になる メールアイコン 問合せ
フリーワード検索