エリアから
検索
路線・駅から
検索
フリーワード
検索
お問い合わせ
相談窓口
問合せ/資料請求
無料
0120-350-323
平日9:00~18:00
検索履歴
Myリスト
気になる
を集めて
Myリストを作りましょう!
エリアから検索
路線・駅から検索
検索履歴
Myリスト
お問い合わせ相談窓口
TEL
無料電話相談( 0120-350-323)
HOME
東京都
2東洋海事ビル B2F
2東洋海事ビル
B2F 24.00坪
気になる
このフロアにお問い合わせ
物件概要
所在地
東京都 港区新橋4-24-8
最寄り駅
JR 「新橋」駅 徒歩5分
京浜東北線 / 山手線 / 東海道本線 / 横須賀線 / 上野東京ライン
新交通ゆりかもめ 「新橋」駅 徒歩5分
東京メトロ 「新橋」駅 徒歩5分
銀座線
都営地下鉄 「新橋」駅 徒歩5分
都営浅草線
新交通ゆりかもめ 「汐留」駅 徒歩6分
都営地下鉄 「汐留」駅 徒歩6分
都営大江戸線
都営地下鉄 「御成門」駅 徒歩10分
都営三田線
竣工
1965年12月 リニューアル有
耐震
耐震診断済
EV
2基
基準階面積
98.00坪
賃貸条件
階数
B2F
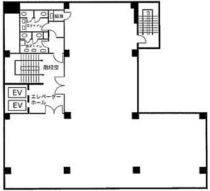
面積
24.00坪 (79.34㎡)
賃料(⽉額/坪単価)
お問合わせください
共益費(⽉額/坪単価)
お問合わせください
敷金
お問合せください
更新料
無
償却費
無
入居日
相談
設備
空調
個別
床仕上げ
タイルカーペット
トイレ
無
天井高
2,400mm
2東洋海事ビル
その他募集中の区画
一括選択
選択クリア
階数
面積
賃料+共益費(税別)
敷金
入居日
図面
詳細
問合せ
気になる
1F
75.30坪
お問合せください
お問合せください
相談
詳細を見る
問合せ
4F
98.00坪
お問合せください
お問合せください
相談
詳細を見る
問合せ
6F
98.00坪
お問合せください
お問合せください
即日
詳細を見る
問合せ
8F
87.00坪
お問合せください
お問合せください
即日
詳細を見る
問合せ
9F
65.00坪
お問合せください
お問合せください
即日
詳細を見る
問合せ
チェックした区画を一括で
気になる
問合せ
他のビルの
募集中の区画を見つける
エリアで探す
路線・駅で探す
ビル名で探す
TOPへ
フリーワード検索
閉じる