物件概要
所在地
東京都港区西新橋3-15-12
最寄り駅
東京メトロ 「虎ノ門ヒルズ」駅 徒歩7分
日比谷線
都営地下鉄 「御成門」駅 徒歩9分
都営三田線
東京メトロ 「神谷町」駅 徒歩10分
日比谷線
竣工
1994年01月
耐震
新耐震
EV
1基
基準階面積
70.00坪
賃貸条件
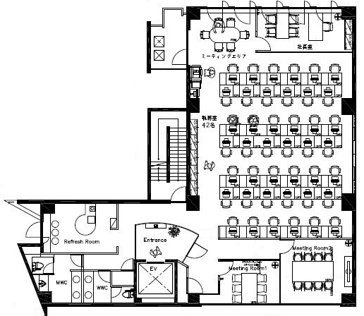
階数
5F
面積
69.95坪 (231.24㎡)
賃料(⽉額/坪単価)
1,077,230円 (15,400円) ※税別
共益費(⽉額/坪単価)
251,820円 (3,600円) ※税別
敷金
6ヶ月
更新料
償却費
入居日
2026/5
設備
空調
個別
床仕上げ
OAフロア
トイレ
室内男女別
天井高
2,550mm
西新橋JKビル その他募集中の区画
一括選択
選択クリア
階数 面積 賃料+共益費(税別) 敷金 入居日 図面 詳細 問合せ 気になる
1F 53.03坪 22,000円/坪
1,166,660円/月
12ヶ月 即日 図面 詳細を見る メールアイコン 問合せ 気になるアイコン
7F 69.65坪 19,000円/坪
1,323,350円/月
6ヶ月 即日 図面 詳細を見る メールアイコン 問合せ 気になるアイコン
チェックした区画を一括で 気になるアイコン 気になる メールアイコン 問合せ
フリーワード検索