エリアから
検索
路線・駅から
検索
フリーワード
検索
お問い合わせ
相談窓口
問合せ/資料請求
無料
0120-350-323
平日9:00~18:00
検索履歴
Myリスト
気になる
を集めて
Myリストを作りましょう!
エリアから検索
路線・駅から検索
検索履歴
Myリスト
お問い合わせ相談窓口
TEL
無料電話相談( 0120-350-323)
HOME
東京都
村松ビル 4F
村松ビル
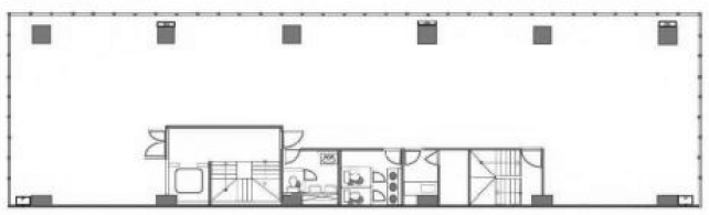
4F 92.34坪
気になる
このフロアにお問い合わせ
物件概要
所在地
東京都 港区東新橋2-2-10
最寄り駅
新交通ゆりかもめ 「汐留」駅 徒歩3分
都営地下鉄 「汐留」駅 徒歩3分
都営大江戸線
JR 「新橋」駅 徒歩4分
京浜東北線 / 山手線 / 東海道本線 / 横須賀線 / 上野東京ライン
新交通ゆりかもめ 「新橋」駅 徒歩4分
東京メトロ 「新橋」駅 徒歩4分
銀座線
都営地下鉄 「新橋」駅 徒歩4分
都営浅草線
都営地下鉄 「御成門」駅 徒歩12分
都営三田線
竣工
1973年09月 リニューアル有
耐震
旧耐震
EV
1基
基準階面積
92.00坪
賃貸条件
階数
4F
面積
92.34坪 (305.26㎡)
賃料(⽉額/坪単価)
1,246,545円 (13,500円) ※税別
共益費(⽉額/坪単価)
323,190円 (3,500円) ※税別
敷金
8ヶ月
更新料
1ヶ月
償却費
20%
入居日
即日
設備
空調
個別
床仕上げ
未調査
トイレ
室外男女別
天井高
2,610mm
村松ビル
その他募集中の区画
一括選択
選択クリア
階数
面積
賃料+共益費(税別)
敷金
入居日
図面
詳細
問合せ
気になる
2F
92.34坪
17,000円/坪
1,569,780円/月
8ヶ月
即日
詳細を見る
問合せ
3F
92.34坪
17,000円/坪
1,569,780円/月
8ヶ月
即日
詳細を見る
問合せ
チェックした区画を一括で
気になる
問合せ
他のビルの
募集中の区画を見つける
エリアで探す
路線・駅で探す
ビル名で探す
TOPへ
フリーワード検索
閉じる