エリアから
検索
路線・駅から
検索
フリーワード
検索
お問い合わせ
相談窓口
問合せ/資料請求
無料
0120-350-323
平日9:00~18:00
検索履歴
Myリスト
気になる
を集めて
Myリストを作りましょう!
エリアから検索
路線・駅から検索
検索履歴
Myリスト
お問い合わせ相談窓口
TEL
無料電話相談( 0120-350-323)
HOME
神奈川県
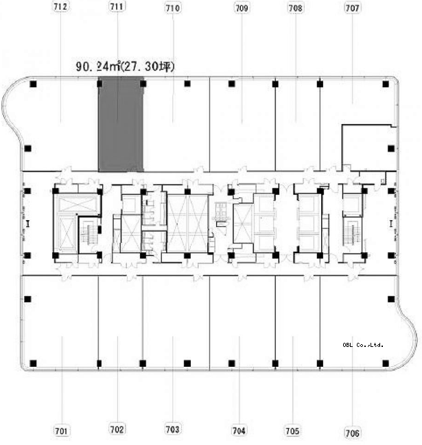
クイーンズタワーA 7F
クイーンズタワーA
7F 27.30坪
気になる
このフロアにお問い合わせ
物件概要
所在地
神奈川県 横浜市西区みなとみらい2-3-1
最寄り駅
横浜高速鉄道 「みなとみらい」駅 徒歩3分
横浜みなとみらい線
JR 「桜木町」駅 徒歩8分
根岸線
横浜市営地下鉄ブルーライン 「桜木町」駅 徒歩8分
横浜市ブルーライン
横浜高速鉄道 「馬車道」駅 徒歩11分
横浜みなとみらい線
竣工
1997年06月
耐震
新耐震
EV
22基
基準階面積
475.45坪
賃貸条件
階数
7F
面積
27.30坪 (90.25㎡)
賃料(⽉額/坪単価)
お問合わせください
共益費(⽉額/坪単価)
お問合わせください
敷金
お問合せください
更新料
無
償却費
無
入居日
2026/1/1
設備
空調
セントラル
床仕上げ
OAフロア
トイレ
室外男女別
天井高
2,730mm
クイーンズタワーA
その他募集中の区画
一括選択
選択クリア
階数
面積
賃料+共益費(税別)
敷金
入居日
図面
詳細
問合せ
気になる
5F
138.08坪
お問合せください
お問合せください
2026/2/1
詳細を見る
問合せ
14F
80.40坪
お問合せください
お問合せください
2026/3/1
詳細を見る
問合せ
チェックした区画を一括で
気になる
問合せ
他のビルの
募集中の区画を見つける
エリアで探す
路線・駅で探す
ビル名で探す
TOPへ
フリーワード検索
閉じる