物件概要
                        
                        
                            
                                - 所在地
 
                                - 
                                    東京都中央区新川2-12-15
                                
 
                            
                                                            
                                    - 最寄り駅
 
                                    - 
                                                                                    
                                                JR京葉線「八丁堀」駅 徒歩4分
                                            
                                                                                    
                                                東京メトロ日比谷線「八丁堀」駅 徒歩4分
                                            
                                                                                    
                                                東京メトロ日比谷線「茅場町」駅 徒歩7分
                                            
                                                                                    
                                                東京メトロ東西線「茅場町」駅 徒歩7分
                                            
                                        
                                                                                    
                                                駅をもっと見る
                                            
                                                                             
                                
                                                                                        
                                    - 竣工
 
                                    - 
                                        1974年12月
                                        リニューアル有
                                    
 
                                
                                                                                        
                                    - 耐震 
 
                                    - 
                                        耐震補強済
                                    
 
                                
                                                        
                                - EV
 
                                - 
                                    2基
                                
 
                            
                                                            
                                    - 基準階面積
 
                                    - 
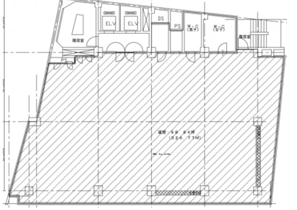
                                        106.55坪
                                    
 
                                
                                                     
                     
                    
                        
                            賃貸条件
                        
                        
                            
                                - 階数
 
                                - 6F
 
                            
                            
                                - 面積
 
                                - 
                                    106.55坪
                                    (352.23㎡)
                                
 
                            
                            
                                - 賃料(⽉額/坪単価)
 
                                - 
                                    
                                    
                                    お問合わせください
                                
 
                            
                            
                                - 共益費(⽉額/坪単価)
 
                                - 
                                    
                                    
                                    お問合わせください
                                
 
                            
                            
                                - 敷金
 
                                - 
                                    
                                                                                                                
                                    10ヶ月
                                
 
                            
                            
                                - 更新料
 
                                - 
                                    
                                                                                                                
                                    1ヶ月
                                
 
                            
                            
                                - 償却費
 
                                - 
                                    
                                    
                                    無
                                
 
                            
                            
                                - 入居日
 
                                - 即日
 
                            
                         
                     
                    
                        
                            設備
                        
                        
                            
                                - 空調
 
                                - 個別
 
                            
                            
                                - 床仕上げ
 
                                - OAフロア
 
                            
                            
                                - トイレ
 
                                - 室内男女別
 
                            
                            
                                - 天井高
 
                                - 2,420mm