物件概要
所在地
東京都 千代田区岩本町2-8-8
最寄り駅
東京メトロ 「小伝馬町」駅 徒歩4分
日比谷線
都営地下鉄 「岩本町」駅 徒歩4分
都営新宿線
東京メトロ 「神田」駅 徒歩7分
銀座線
竣工
1991年09月
耐震
新耐震
EV
1基
基準階面積
82.66坪
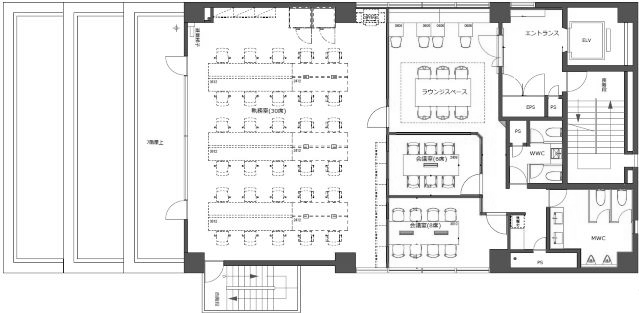
賃貸条件
階数
8F
面積
60.68坪 (200.6㎡)
賃料(⽉額/坪単価)
1,456,320円 (24,000円) ※税別
共益費(⽉額/坪単価)
賃料に含む
敷金
お問合せください
更新料
償却費
入居日
2025/12月上旬
設備
空調
個別
床仕上げ
タイルカーペット
トイレ
室内男女別
天井高
2,600mm
THE PORTAL IWAMOTOCHO その他募集中の区画
一括選択
選択クリア
階数 面積 賃料+共益費(税別) 敷金 入居日 図面 詳細 問合せ 気になる
1F 50.93坪 24,000円/坪
1,222,320円/月
お問合せください 2026/4 図面 詳細を見る メールアイコン 問合せ 気になるアイコン
7F 69.66坪 24,000円/坪
1,671,840円/月
お問合せください 即日 図面 詳細を見る メールアイコン 問合せ 気になるアイコン
チェックした区画を一括で 気になるアイコン 気になる メールアイコン 問合せ
フリーワード検索