物件概要
- 所在地
-
東京都 中央区八丁堀4-9-9
- 最寄り駅
-
JR 「八丁堀」駅
徒歩1分
京葉線
東京メトロ 「八丁堀」駅
徒歩1分
日比谷線
東京メトロ 「新富町」駅
徒歩8分
有楽町線
都営地下鉄 「宝町」駅
徒歩9分
都営浅草線
- 竣工
-
1991年10月
リニューアル有
- 耐震
-
新耐震
- EV
-
1基
- 基準階面積
-
24.00坪
賃貸条件
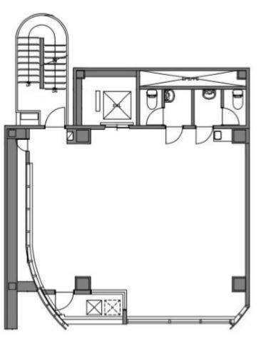
- 階数
- 3F
- 面積
-
24.01坪
(79.37㎡)
- 賃料(⽉額/坪単価)
-
432,180円 (18,000円) ※税別
- 共益費(⽉額/坪単価)
-
賃料に含む
- 敷金
-
2ヶ月
- 更新料
-
1ヶ月
- 償却費
-
1ヶ月
- 入居日
- 2026/8
設備
- 空調
- 個別
- 床仕上げ
- OAフロア
- トイレ
- 室内男女別
- 天井高
- 2,900mm