エリアから
検索
路線・駅から
検索
フリーワード
検索
お問い合わせ
相談窓口
問合せ/資料請求
無料
0120-350-323
平日9:00~18:00
検索履歴
Myリスト
気になる
を集めて
Myリストを作りましょう!
エリアから検索
路線・駅から検索
検索履歴
Myリスト
お問い合わせ相談窓口
TEL
無料電話相談( 0120-350-323)
HOME
東京都
浜離宮パークサイドプレイス 2F
浜離宮パークサイドプレイス
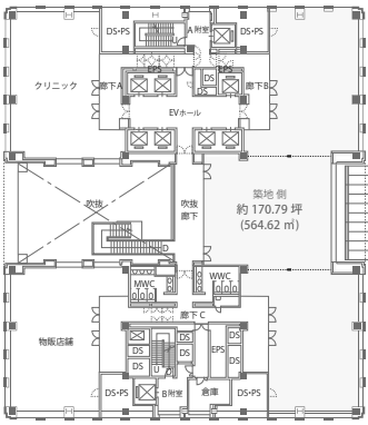
2F 170.79坪
この区画の募集は終了しました
気になる
物件概要
所在地
東京都 中央区築地5-6-10
最寄り駅
都営地下鉄 「築地市場」駅 徒歩5分
都営大江戸線
新交通ゆりかもめ 「汐留」駅 徒歩10分
都営地下鉄 「汐留」駅 徒歩10分
都営大江戸線
JR 「新橋」駅 徒歩13分
京浜東北線 / 山手線 / 東海道本線 / 横須賀線 / 上野東京ライン
竣工
2002年11月
耐震
新耐震
EV
9基
基準階面積
430.76坪
賃貸条件
階数
2F
面積
170.79坪 (564.6㎡)
賃料(⽉額/坪単価)
お問合わせください
共益費(⽉額/坪単価)
お問合わせください
敷金
12ヶ月
更新料
無
償却費
無
入居日
相談
設備
空調
セントラル+個別
床仕上げ
スケルトン
トイレ
室外男女別
天井高
2,700mm
浜離宮パークサイドプレイス
その他募集中の区画
一括選択
選択クリア
階数
面積
賃料+共益費(税別)
敷金
入居日
図面
詳細
問合せ
気になる
3F
436.87坪
お問合せください
12ヶ月
相談
詳細を見る
問合せ
12F
211.39坪
お問合せください
12ヶ月
2026/4
詳細を見る
問合せ
チェックした区画を一括で
気になる
問合せ
他のビルの
募集中の区画を見つける
エリアで探す
路線・駅で探す
ビル名で探す
TOPへ
フリーワード検索
閉じる