物件概要
- 所在地
-
東京都 中央区湊2-12-11
- 最寄り駅
-
東京メトロ 「新富町」駅
徒歩7分
有楽町線
JR 「八丁堀」駅
徒歩8分
京葉線
東京メトロ 「八丁堀」駅
徒歩8分
日比谷線
東京メトロ 「築地」駅
徒歩11分
日比谷線
- 竣工
-
1990年05月
- 耐震
-
新耐震
- EV
-
1基
- 基準階面積
-
61.57坪
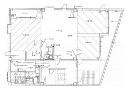
賃貸条件
- 階数
- 9F
- 面積
-
59.23坪
(195.8㎡)
- 賃料(⽉額/坪単価)
-
1,006,910円 (17,000円) ※税別
- 共益費(⽉額/坪単価)
-
賃料に含む
- 敷金
-
6ヶ月
- 更新料
-
1ヶ月
- 償却費
-
無
- 入居日
- 即日
設備
- 空調
- 個別
- 床仕上げ
- OAフロア
- トイレ
- 室外男女別
- 天井高
- -