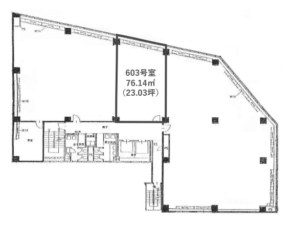
銀座昭和通りビル 6F 23.03坪

この区画の募集は終了しました
物件概要
所在地
東京都 中央区銀座8-14-14
最寄り駅
都営地下鉄 「築地市場」駅 徒歩5分
都営大江戸線
東京メトロ 「東銀座」駅 徒歩6分
日比谷線
都営地下鉄 「東銀座」駅 徒歩6分
都営浅草線
新交通ゆりかもめ 「新橋」駅 徒歩9分
都営地下鉄 「新橋」駅 徒歩9分
都営浅草線
竣工
1985年05月
耐震
新耐震
EV
2基
基準階面積
167.00坪
賃貸条件
階数
6F
面積
23.03坪 (76.13㎡)
賃料(⽉額/坪単価)
お問合わせください
共益費(⽉額/坪単価)
お問合わせください
敷金
12ヶ月
更新料
償却費
入居日
即日
設備
空調
個別
床仕上げ
タイルカーペット
トイレ
室外男女別
天井高
2,650mm
銀座昭和通りビル その他募集中の区画
一括選択
選択クリア
階数 面積 賃料+共益費(税別) 敷金 入居日 図面 詳細 問合せ 気になる
2F 54.61坪 お問合せください 10ヶ月 即日 図面 詳細を見る メールアイコン 問合せ 気になるアイコン
チェックした区画を一括で 気になるアイコン 気になる メールアイコン 問合せ
フリーワード検索