物件概要
所在地
東京都 千代田区岩本町2-12-5
最寄り駅
都営新宿線「岩本町」駅 徒歩2分
東京メトロ日比谷線「秋葉原」駅 徒歩6分
東京メトロ日比谷線「小伝馬町」駅 徒歩6分
竣工
1973年04月 リニューアル有
耐震
制震
EV
2基
基準階面積
111.39坪
賃貸条件
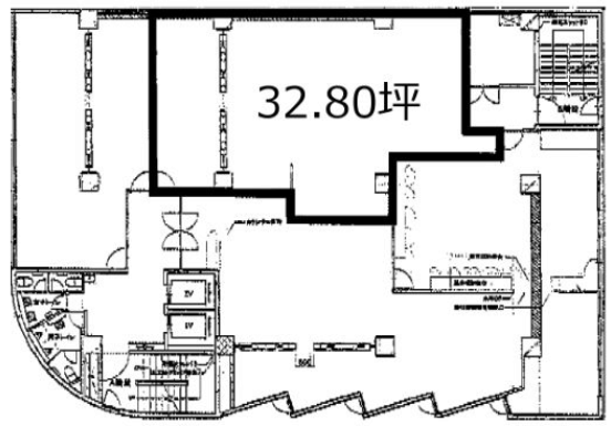
階数
6F
面積
114.49坪 (378.48㎡)
賃料(⽉額/坪単価)
1,831,840円 (16,000円) ※税別
共益費(⽉額/坪単価)
敷金
6ヶ月
更新料
償却費
入居日
2025/11
設備
空調
個別
床仕上げ
OAフロア
トイレ
室外男女別
天井高
2,750mm
早川トナカイビル その他募集中の区画
一括選択
選択クリア
階数 面積 賃料+共益費(税別) 敷金 入居日 図面 詳細 問合せ 気になる
2F 48.04坪 13,000円/坪
624,520円/月
6ヶ月 即日 図面 詳細を見る メールアイコン 問合せ 気になるアイコン
チェックした区画を一括で 気になるアイコン 気になる メールアイコン 問合せ
フリーワード検索