ニュー八重洲ビル 2F 26.24坪

この区画の募集は終了しました
物件概要
所在地
東京都 中央区日本橋3-5-12
最寄り駅
東京メトロ東西線「日本橋」駅 徒歩4分
東京メトロ銀座線「日本橋」駅 徒歩4分
都営浅草線「日本橋」駅 徒歩4分
東京メトロ銀座線「京橋」駅 徒歩6分
都営浅草線「宝町」駅 徒歩7分
駅をもっと見る
竣工
1964年07月
耐震
旧耐震
EV
1基
基準階面積
60.20坪
賃貸条件
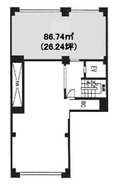
階数
2F
面積
26.24坪 (86.74㎡)
賃料(⽉額/坪単価)
524,800円 (20,000円) ※税別
共益費(⽉額/坪単価)
賃料に含む
敷金
6ヶ月
更新料
1ヶ月
償却費
1ヶ月
入居日
即日
設備
空調
個別
床仕上げ
タイルカーペット
トイレ
室外男女別
天井高
2,260mm
ニュー八重洲ビル その他募集中の区画
只今その他募集中の区画は御座いません。
フリーワード検索