エコー京橋ビル 8F 37.41坪

この区画の募集は終了しました
物件概要
所在地
東京都 中央区京橋3-12-1
最寄り駅
都営浅草線「宝町」駅 徒歩1分
東京メトロ銀座線「京橋」駅 徒歩4分
東京メトロ有楽町線「銀座一丁目」駅 徒歩7分
竣工
1975年
耐震
旧耐震
EV
1基
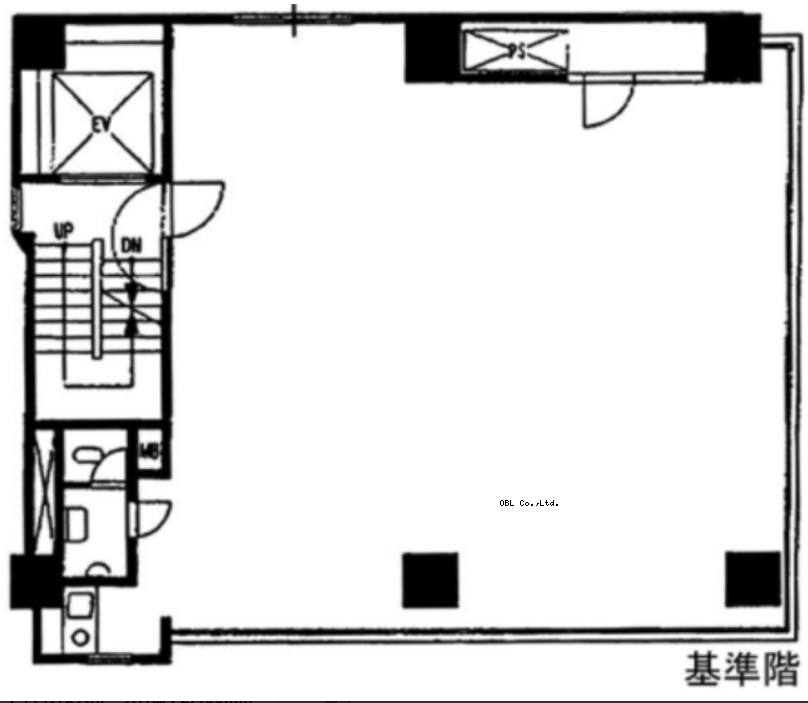
基準階面積
37.41坪
賃貸条件
階数
8F
面積
37.41坪 (123.67㎡)
賃料(⽉額/坪単価)
400,287円 (10,700円) ※税別
共益費(⽉額/坪単価)
130,935円 (3,500円) ※税別
敷金
6ヶ月
更新料
償却費
1ヶ月
入居日
即日
設備
空調
個別
床仕上げ
タイルカーペット
トイレ
室内男女共用
天井高
-
エコー京橋ビル その他募集中の区画
一括選択
選択クリア
階数 面積 賃料+共益費(税別) 敷金 入居日 図面 詳細 問合せ 気になる
4F 37.41坪 14,200円/坪
531,222円/月
6ヶ月 即日 図面 詳細を見る メールアイコン 問合せ 気になるアイコン
チェックした区画を一括で 気になるアイコン 気になる メールアイコン 問合せ
フリーワード検索