京橋創生館
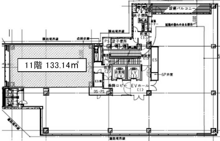
11F
40.27坪
この区画の募集は終了しました
物件概要
- 所在地
-
東京都中央区京橋2-5-18
- 最寄り駅
-
東京メトロ銀座線「京橋」駅 徒歩1分
都営浅草線「宝町」駅 徒歩2分
東京メトロ有楽町線「銀座一丁目」駅 徒歩5分
- 竣工
-
2008年12月
- 耐震
-
新耐震
- EV
-
4基
- 基準階面積
-
183.31坪
賃貸条件
- 階数
- 11F
- 面積
-
40.27坪
(133.12㎡)
- 賃料(⽉額/坪単価)
-
お問合わせください
- 共益費(⽉額/坪単価)
-
お問合わせください
- 敷金
-
お問合せください
- 更新料
-
無
- 償却費
-
無
- 入居日
- 2025/10
設備
- 空調
- 個別
- 床仕上げ
- OAフロア
- トイレ
- 室外男女別
- 天井高
- 2,750mm