物件概要
- 所在地
-
東京都 中央区日本橋本町2-3-5
- 最寄り駅
-
東京メトロ銀座線「三越前」駅 徒歩2分
JR総武線快速「新日本橋」駅 徒歩3分
東京メトロ半蔵門線「三越前」駅 徒歩5分
東京メトロ日比谷線「小伝馬町」駅 徒歩6分
駅をもっと見る
- 竣工
-
1978年04月
- 耐震
-
旧耐震
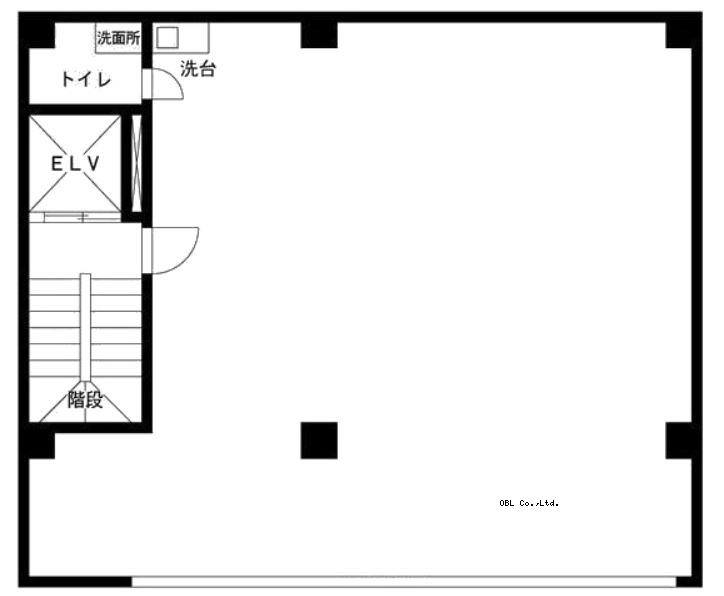
- EV
-
1基
- 基準階面積
-
35.47坪
賃貸条件
- 階数
- 3F
- 面積
-
35.46坪
(117.22㎡)
- 賃料(⽉額/坪単価)
-
500,000円 (14,100円) ※税別
- 共益費(⽉額/坪単価)
-
109,091円 (3,076円) ※税別
- 敷金
-
6ヶ月
- 更新料
-
1ヶ月
- 償却費
-
20%
- 入居日
- 即日
設備
- 空調
- 個別
- 床仕上げ
- タイルカーペット
- トイレ
- 室内男女共用
- 天井高
- 2,450mm