物件概要
- 所在地
-
東京都 中央区日本橋本町1-1-3
- 最寄り駅
-
東京メトロ 「三越前」駅
徒歩4分
半蔵門線
東京メトロ 「三越前」駅
徒歩4分
銀座線
都営地下鉄 「日本橋」駅
徒歩5分
都営浅草線
JR 「新日本橋」駅
徒歩6分
総武線快速
東京メトロ 「日本橋」駅
徒歩6分
東西線
東京メトロ 「日本橋」駅
徒歩6分
銀座線
- 竣工
-
1992年05月
- 耐震
-
新耐震
- EV
-
1基
- 基準階面積
-
25.90坪
賃貸条件
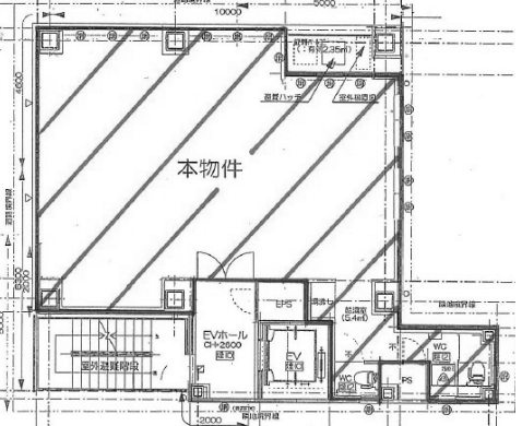
- 階数
- 4F
- 面積
-
25.90坪
(85.62㎡)
- 賃料(⽉額/坪単価)
-
お問合わせください
- 共益費(⽉額/坪単価)
-
お問合わせください
- 敷金
-
12ヶ月
- 更新料
-
無
- 償却費
-
1ヶ月
- 入居日
- 2026/6
設備
- 空調
- 個別
- 床仕上げ
- OAフロア
- トイレ
- 室内男女別
- 天井高
- 2,600mm