エリアから
検索
路線・駅から
検索
フリーワード
検索
お問い合わせ
相談窓口
問合せ/資料請求
無料
0120-350-323
平日9:00~18:00
検索履歴
Myリスト
気になる
を集めて
Myリストを作りましょう!
エリアから検索
路線・駅から検索
検索履歴
Myリスト
お問い合わせ相談窓口
TEL
無料電話相談( 0120-350-323)
HOME
東京都
サンジュ共和十番館ビル
サンジュ共和十番館ビル
物件概要
所在地
東京都 千代田区神田駿河台3-5-4
最寄り駅
東京メトロ 「新御茶ノ水」駅 徒歩4分
千代田線
東京メトロ 「淡路町」駅 徒歩5分
丸ノ内線
都営地下鉄 「小川町」駅 徒歩5分
都営新宿線
規模
地上8階
竣工
1986年02月
耐震
新耐震
EV
1基
基準階面積
65.67坪
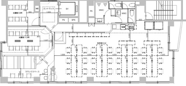
サンジュ共和十番館ビル 募集中の区画
一括選択
選択クリア
階数
面積
賃料+共益費(税別)
敷金
入居日
図面
詳細
問合せ
気になる
6F
48.76坪
27,000円/坪
1,316,520円/月
6ヶ月
即日
詳細を見る
問合せ
チェックした区画を一括で
気になる
問合せ
他のビルの
募集中の区画を見つける
エリアで探す
路線・駅で探す
ビル名で探す
TOPへ
フリーワード検索
閉じる