エリアから
検索
路線・駅から
検索
フリーワード
検索
お問い合わせ
相談窓口
問合せ/資料請求
無料
0120-350-323
平日9:00~18:00
検索履歴
Myリスト
気になる
を集めて
Myリストを作りましょう!
エリアから検索
路線・駅から検索
検索履歴
Myリスト
お問い合わせ相談窓口
TEL
無料電話相談( 0120-350-323)
HOME
東京都
NOVEL WORK sangenjaya
NOVEL WORK sangenjaya
物件概要
所在地
東京都世田谷区太子堂1-4-33
最寄り駅
東急電鉄 「三軒茶屋」駅 徒歩10分
東急世田谷線 / 東急田園都市線
規模
地上8階
竣工
1992年04月
耐震
新耐震
EV
1基
基準階面積
22.08坪
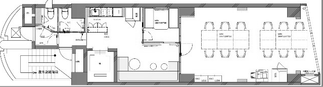
NOVEL WORK sangenjaya 募集中の区画
一括選択
選択クリア
階数
面積
賃料+共益費(税別)
敷金
入居日
図面
詳細
問合せ
気になる
4F
23.81坪
24,000円/坪
571,440円/月
お問合せください
即日
詳細を見る
問合せ
5F
23.81坪
24,000円/坪
571,440円/月
お問合せください
即日
詳細を見る
問合せ
6F
23.81坪
24,000円/坪
571,440円/月
お問合せください
即日
詳細を見る
問合せ
7F
23.81坪
24,000円/坪
571,440円/月
お問合せください
即日
詳細を見る
問合せ
チェックした区画を一括で
気になる
問合せ
他のビルの
募集中の区画を見つける
エリアで探す
路線・駅で探す
ビル名で探す
TOPへ
フリーワード検索
閉じる