エリアから
検索
路線・駅から
検索
フリーワード
検索
お問い合わせ
相談窓口
問合せ/資料請求
無料
0120-350-323
平日9:00~18:00
検索履歴
Myリスト
気になる
を集めて
Myリストを作りましょう!
エリアから検索
路線・駅から検索
検索履歴
Myリスト
お問い合わせ相談窓口
TEL
無料電話相談( 0120-350-323)
HOME
エルマノス赤坂ビル
エルマノス赤坂ビル
物件概要
所在地
東京都港区赤坂8ー4ー3
最寄り駅
東京メトロ半蔵門線「青山一丁目」駅 徒歩3分
東京メトロ銀座線「青山一丁目」駅 徒歩3分
都営大江戸線「青山一丁目」駅 徒歩3分
東京メトロ千代田線「乃木坂」駅 徒歩10分
駅をもっと見る
規模
地上7階
竣工
1969年07月
耐震
新耐震
EV
有
エルマノス赤坂ビル 募集中の区画
一括選択
選択クリア
階数
面積
賃料+共益費(税別)
敷金
入居日
図面
詳細
問合せ
気になる
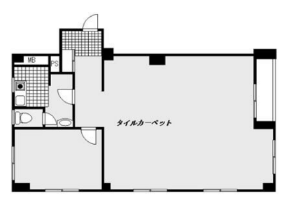
6F
24.93坪
16,446円/坪
410,000円/月
4ヶ月
即日
詳細を見る
問合せ
チェックした区画を一括で
気になる
問合せ
他のビルの
募集中の区画を見つける
エリアで探す
路線・駅で探す
ビル名で探す
TOPへ
フリーワード検索
閉じる