エリアから
検索
路線・駅から
検索
フリーワード
検索
お問い合わせ
相談窓口
問合せ/資料請求
無料
0120-350-323
平日9:00~18:00
検索履歴
Myリスト
気になる
を集めて
Myリストを作りましょう!
エリアから検索
路線・駅から検索
検索履歴
Myリスト
お問い合わせ相談窓口
TEL
無料電話相談( 0120-350-323)
HOME
(仮)昭和ネオン本社ビル
(仮)昭和ネオン本社ビル
物件概要
所在地
東京都品川区南品川1-7-17
最寄り駅
京浜急行鉄道 「新馬場」駅 徒歩3分
京浜急行本線
京浜急行鉄道 「青物横丁」駅 徒歩10分
京浜急行本線
規模
地上6階
竣工
2025年02月
耐震
新耐震
EV
1基
(仮)昭和ネオン本社ビル 募集中の区画
一括選択
選択クリア
階数
面積
賃料+共益費(税別)
敷金
入居日
図面
詳細
問合せ
気になる
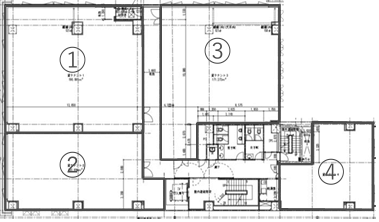
2F
57.48坪
20,000円/坪
1,149,600円/月
6ヶ月
即日
詳細を見る
問合せ
2F
37.48坪
20,000円/坪
749,600円/月
6ヶ月
即日
詳細を見る
問合せ
2F
51.81坪
20,000円/坪
1,036,200円/月
6ヶ月
即日
詳細を見る
問合せ
チェックした区画を一括で
気になる
問合せ
他のビルの
募集中の区画を見つける
エリアで探す
路線・駅で探す
ビル名で探す
TOPへ
フリーワード検索
閉じる