mirio神保町

物件概要
所在地
東京都千代田区神田神保町1-28-1
最寄り駅
東京メトロ 「神保町」駅 徒歩3分
半蔵門線
都営地下鉄 「神保町」駅 徒歩3分
都営三田線 / 都営新宿線
JR 「御茶ノ水」駅 徒歩10分
中央線 / 総武線
東京メトロ 「九段下」駅 徒歩11分
半蔵門線 / 東西線
都営地下鉄 「九段下」駅 徒歩11分
都営新宿線
東京メトロ 「御茶ノ水」駅 徒歩12分
丸ノ内線
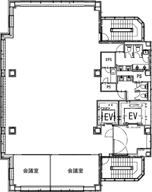
規模
地上14階
竣工
2023年08月
耐震
新耐震
EV
2基
基準階面積
79.27坪
mirio神保町 募集中の区画
一括選択
選択クリア
階数 面積 賃料+共益費(税別) 敷金 入居日 図面 詳細 問合せ 気になる
12F 79.27坪 お問合せください お問合せください 即日 図面 詳細を見る メールアイコン 問合せ 気になるアイコン
チェックした区画を一括で 気になるアイコン 気になる メールアイコン 問合せ
フリーワード検索