エリアから
検索
路線・駅から
検索
フリーワード
検索
お問い合わせ
相談窓口
問合せ/資料請求
無料
0120-350-323
平日9:00~18:00
検索履歴
Myリスト
気になる
を集めて
Myリストを作りましょう!
エリアから検索
路線・駅から検索
検索履歴
Myリスト
お問い合わせ相談窓口
TEL
無料電話相談( 0120-350-323)
HOME
Mビル
Mビル
物件概要
所在地
東京都江東区大島6-10-15
最寄り駅
都営地下鉄 「大島」駅 徒歩2分
都営新宿線
規模
地上3階
竣工
1993年12月
耐震
新耐震
EV
1基
Mビル 募集中の区画
一括選択
選択クリア
階数
面積
賃料+共益費(税別)
敷金
入居日
図面
詳細
問合せ
気になる
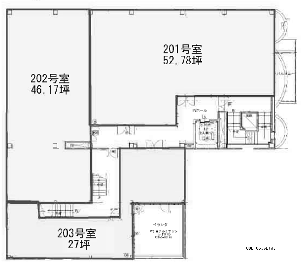
2F
52.86坪
12,650円/坪
667,719円/月
12ヶ月
即日
詳細を見る
問合せ
3F
39.58坪
12,127円/坪
480,000円/月
12ヶ月
即日
詳細を見る
問合せ
チェックした区画を一括で
気になる
問合せ
他のビルの
募集中の区画を見つける
エリアで探す
路線・駅で探す
ビル名で探す
TOPへ
フリーワード検索
閉じる