エリアから
検索
路線・駅から
検索
フリーワード
検索
お問い合わせ
相談窓口
問合せ/資料請求
無料
0120-350-323
平日9:00~18:00
検索履歴
Myリスト
気になる
を集めて
Myリストを作りましょう!
エリアから検索
路線・駅から検索
検索履歴
Myリスト
お問い合わせ相談窓口
TEL
無料電話相談( 0120-350-323)
HOME
L.Biz御茶ノ水
L.Biz御茶ノ水
物件概要
所在地
東京都千代田区神田猿楽町2-1-15
最寄り駅
東京メトロ 「神保町」駅 徒歩6分
半蔵門線
都営地下鉄 「神保町」駅 徒歩6分
都営三田線 / 都営新宿線
JR 「御茶ノ水」駅 徒歩9分
中央線 / 総武線
東京メトロ 「御茶ノ水」駅 徒歩11分
丸ノ内線
規模
地上6階
竣工
2021年12月
耐震
新耐震
EV
1基
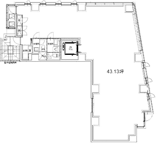
基準階面積
47.13坪
L.Biz御茶ノ水 募集中の区画
一括選択
選択クリア
階数
面積
賃料+共益費(税別)
敷金
入居日
図面
詳細
問合せ
気になる
5F
47.13坪
20,000円/坪
942,600円/月
お問合せください
相談
詳細を見る
問合せ
チェックした区画を一括で
気になる
問合せ
他のビルの
募集中の区画を見つける
エリアで探す
路線・駅で探す
ビル名で探す
TOPへ
フリーワード検索
閉じる