エリアから
検索
路線・駅から
検索
フリーワード
検索
お問い合わせ
相談窓口
問合せ/資料請求
無料
0120-350-323
平日9:00~18:00
検索履歴
Myリスト
気になる
を集めて
Myリストを作りましょう!
エリアから検索
路線・駅から検索
検索履歴
Myリスト
お問い合わせ相談窓口
TEL
無料電話相談( 0120-350-323)
HOME
TODA BUILDING
TODA BUILDING
物件概要
所在地
東京都中央区京橋1-7-1
最寄り駅
東京メトロ銀座線「京橋」駅 徒歩3分
東京メトロ銀座線「日本橋」駅 徒歩5分
東京メトロ東西線「日本橋」駅 徒歩5分
都営浅草線「日本橋」駅 徒歩5分
都営浅草線「宝町」駅 徒歩6分
駅をもっと見る
規模
地上28階 地下3階
竣工
2024年09月
耐震
免震
EV
21基
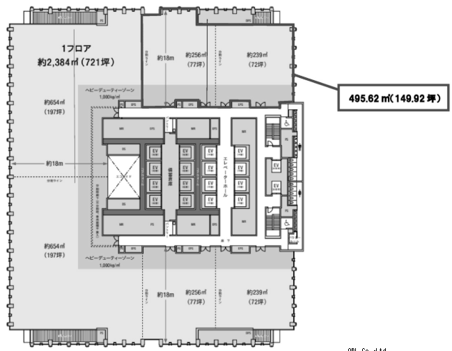
基準階面積
721.00坪
TODA BUILDING 募集中の区画
一括選択
選択クリア
階数
面積
賃料+共益費(税別)
敷金
入居日
図面
詳細
問合せ
気になる
21F
149.92坪
お問合せください
お問合せください
2026/12
詳細を見る
問合せ
チェックした区画を一括で
気になる
問合せ
他のビルの
募集中の区画を見つける
エリアで探す
路線・駅で探す
ビル名で探す
TOPへ
フリーワード検索
閉じる