エリアから
検索
路線・駅から
検索
フリーワード
検索
お問い合わせ
相談窓口
問合せ/資料請求
無料
0120-350-323
平日9:00~18:00
検索履歴
Myリスト
気になる
を集めて
Myリストを作りましょう!
エリアから検索
路線・駅から検索
検索履歴
Myリスト
お問い合わせ相談窓口
TEL
無料電話相談( 0120-350-323)
HOME
oak神田鍛冶町
oak神田鍛冶町
物件概要
所在地
東京都千代田区神田鍛冶町3-4
最寄り駅
JR 「神田」駅 徒歩1分
中央線 / 京浜東北線 / 山手線
東京メトロ 「神田」駅 徒歩1分
銀座線
都営地下鉄 「小川町」駅 徒歩6分
都営新宿線
東京メトロ 「淡路町」駅 徒歩7分
丸ノ内線
規模
地上9階 地下1階
竣工
2017年08月
耐震
制震
EV
3基
基準階面積
215.00坪
oak神田鍛冶町 募集中の区画
一括選択
選択クリア
階数
面積
賃料+共益費(税別)
敷金
入居日
図面
詳細
問合せ
気になる
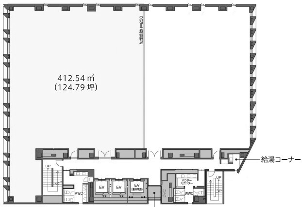
3F
124.79坪
お問合せください
12ヶ月
2026/7
詳細を見る
問合せ
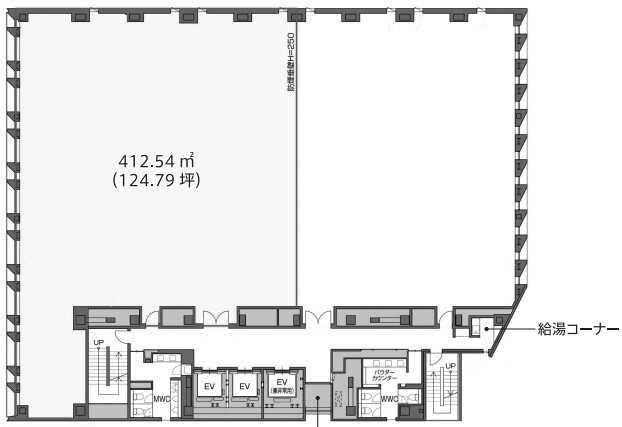
5F
124.79坪
お問合せください
12ヶ月
2026/4
詳細を見る
問合せ
6F
215.00坪
お問合せください
12ヶ月
2026/4
詳細を見る
問合せ
チェックした区画を一括で
気になる
問合せ
他のビルの
募集中の区画を見つける
エリアで探す
路線・駅で探す
ビル名で探す
TOPへ
フリーワード検索
閉じる