エリアから
検索
路線・駅から
検索
フリーワード
検索
お問い合わせ
相談窓口
問合せ/資料請求
無料
0120-350-323
平日9:00~18:00
検索履歴
Myリスト
気になる
を集めて
Myリストを作りましょう!
エリアから検索
路線・駅から検索
検索履歴
Myリスト
お問い合わせ相談窓口
TEL
無料電話相談( 0120-350-323)
HOME
東京都
丸の内ビルディング
丸の内ビルディング
物件概要
所在地
東京都 千代田区丸の内2-4-1
最寄り駅
JR山手線「東京」駅 徒歩1分
JR上野東京ライン「東京」駅 徒歩1分
JR東海道本線「東京」駅 徒歩1分
JR横須賀線「東京」駅 徒歩1分
東北新幹線「東京」駅 徒歩1分
JR総武線快速「東京」駅 徒歩1分
JR中央線「東京」駅 徒歩1分
東海道新幹線「東京」駅 徒歩1分
上越新幹線「東京」駅 徒歩1分
JR京浜東北線「東京」駅 徒歩1分
JR京葉線「東京」駅 徒歩1分
北陸新幹線「東京」駅 徒歩1分
東京メトロ丸ノ内線「東京」駅 徒歩1分
東京メトロ千代田線「二重橋前」駅 徒歩3分
東京メトロ千代田線「大手町」駅 徒歩4分
東京メトロ東西線「大手町」駅 徒歩4分
都営三田線「大手町」駅 徒歩4分
駅をもっと見る
規模
地上37階 地下4階
竣工
2002年08月
耐震
制震
EV
25基
基準階面積
589.00坪
丸の内ビルディング 募集中の区画
一括選択
選択クリア
階数
面積
賃料+共益費(税別)
敷金
入居日
図面
詳細
問合せ
気になる
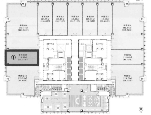
14F
103.50坪
お問合せください
お問合せください
2026/6
詳細を見る
問合せ
34F
35.71坪
お問合せください
お問合せください
即日
詳細を見る
問合せ
チェックした区画を一括で
気になる
問合せ
他のビルの
募集中の区画を見つける
エリアで探す
路線・駅で探す
ビル名で探す
TOPへ
フリーワード検索
閉じる